Stock- und Stein-Lodges Bad Gleichenberg
Haag 86, Bad Gleichenberg, Autriche
Die Steiermark steht für herrliche Natur, guten Wein und eine lange Holzbautradition. Dieser hat sich auch der Unternehmer Jürgen Tackner verschrieben, der in der Nähe von Bad Gleichenberg zwölf Gäste-Appartements baute, die neben luxuriösem Komfort auch einen grandiosen Blick auf das südoststeirische Thermen- und Vulkanland bieten. Dabei sorgt das Wärmedämmelement Schöck Sconnex Typ W dafür, dass nicht nur die gewünschte schlanke Sichtbeton-Ästhetik des Sockelgeschosses, sondern vor allem auch die thermische Trennung zwischen den Stahlbetonbauteilen und der darauf liegenden Holzkonstruktion sicher gelingt.
Stock & Stein Lodges heißen die zwölf einzelnstehenden Holz-Kuben, die Feriengästen in der Nähe von Bad Gleichenberg in der Steiermark ein komfortables Dach über dem Kopf bieten. Sie stehen auf vulkanischem Boden, mit reichlich Basaltvorkommen und in unmittelbarer Nähe eines Waldes. Daraus setzt sich auch der Name der Anlage zusammen: Stock steht für das Holz, das für die Wohnkuben verwendet wird, Stein – hier in Form von Beton – für die Gebäudebasis, auf der die Wohnkuben ruhen. Die Schnittstelle der Materialen Holz und Beton bildeten nicht nur den konstruktiv-thermischen Knackpunkt dieses Projekts, sondern die Kombination erfüllte auch den Anspruch des Grazer Architekten Thomas Zach, die Wandscheiben des Sockelgeschosses in Sichtbeton zu belassen.
Sichere Dämmung vermeidet Bauschäden
Für den Bauphysiker Karl Höfler war klar, dass die Materialkombination nur funktioniert, wenn eine thermische Entkopplung zwischen den Betonwandscheiben des Gebäudesockels und der Bodenplatte der Wohnkuben stattfindet. „Da war Sconnex eine gute Möglichkeit, dieses Problem zu lösen.“ Die generelle Problematik liege im Übergang von kalten Stahlbeton- zu den warmen Holzbauteilen, so der Grazer Bauphysiker. „Finden irgendwo im Schwellenbereich Taupunktunterschreitungen statt und es bildet sich Kondensat, ist das ganz schlecht für den Holzbau.“ Meist werden solche Stellen jedoch erst entdeckt, wenn es zu spät ist. „Faulen die unteren Holzelemente weg, bedeutet dies im Prinzip dann den Totalschaden“, erklärt Karl Höfler. Und dies schade auch dem Image des Holzbaus, selbst im Holzbauland Steiermark.
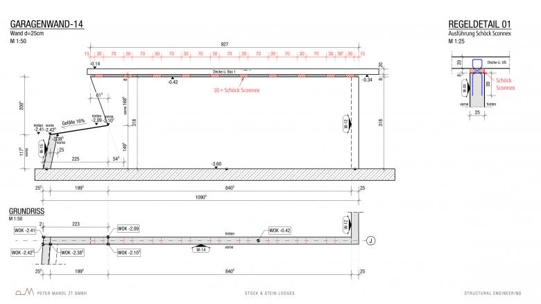
Thermische Trennung der Bauteile
Beim Projekt Stock & Stein wurden daher alle relevanten Betonwände des kalten Sockelgeschosses am Wandkopf mit dem Wärmedämmelement Sconnex Typ W von Schöck thermisch von der Bodenplatte der Wohnkuben entkoppelt. Die außen liegende Dämmebene unterhalb der Bodenplatte konnte so unterbrechungsfrei gestaltet und eine mögliche Unterschreitung des Taupunktes vermieden werden. Die Bildung von Kondensat in der darüberliegenden Holzkonstruktion ist somit ausgeschlossen und die Nachhaltigkeit der einzigartigen Architektur sichergestellt.
Mit Sconnex wirtschaftlich und ökologisch bauen
Durch die thermische Entkoppelung der Stahlbetonwände des Sockelgeschosses konnte die Flankendämmung entfallen. „Darüber hinaus spielte natürlich auch die deutliche Minimierung von Wärmebrücken und somit von Energieverlusten eine entscheidende Rolle bei der Entscheidung für Sconnex“, fügt Karl Höfler hinzu. „Je niedriger der Wärmeverlust, desto höher die Wirtschaftlichkeit.“ Oder andersherum: Eine höhere Energieeffizienz des Gebäudes spart nicht nur Ressourcen, sondern auch Geld.
Gute Energiebilanz durch reduzierte Wärmebrücken
Bei der Entwicklung der neuen Produktfamilie Schöck Sconnex, die als
Typ „W“ (Wand) und „P“ (Stütze) für eine wirkungsvolle Wärmedämmung von Stahlbetonwänden und -stützen im Anschluss zu Geschossdecken oder der Bodenplatte sorgen, stand die Reduzierung von Wärmebrücken und somit eine bessere Energieeffizienz der Gebäude im Fokus. Der Wärmeverlust wird im Anwendungsfall Unterdeckendämmung um bis zu 61 % und im Anwendungsfall um bis zu 80 % reduziert Dies bewirkt nicht nur, dass Heizenergieverluste reduziert werden, sondern auch, dass die Bildung von Schimmelpilz oder Kondensat vermieden wird.
Ausführung in Sichtbetonoptik
Der Entfall der Flankendämmung durch die Verwendung von Sconnex eröffnet die Ausführung des Sockelgeschosses in attraktiver Sichtbetonoptik – für den Architekten Thomas Zach ein wichtiger gestalterischer Aspekt bei der Umsetzung der objektspezifischen Themen. Zudem sprach auch ein praktischer Grund gegen eine flächige Wärmedämmung der Wände im Sockelgeschoss: Zwischen den Wänden ist Raum für Parkplätze und die Erfahrung zeigt, dass Unachtsamkeit beim Einparken unschöne Spuren in Wärmedämmungen hinterlässt.
Entspannen mit Fernsicht
Ist das Auto sicher eingeparkt, geht es für die Besucher hinauf in eins der gut 60 Quadratmeter großen Appartements, die sich auf einem Hang locker gruppieren und für jeweils zwei bis vier Gäste konzipiert wurden. Der Ausbaustandard liegt im Luxus-Segment, Box Nr. 10 sogar auf dem Niveau einer Präsidentensuite, hier steht die doppelte Wohnfläche zur Verfügung. „Alle Lodges bieten durch die große Verglasung an der Südseite eine grandiose Aussicht in die Natur“, erklärt der Architekt sein Entwurfskonzept.
Japanische Tradition für steirischen Holzbau
Außen zeigt die vorgesetzte vertikale Lattenschalung aus Lärchenholz ein elegantes Schwarz. Um diesen satten Schwarzton dauerhaft zu erhalten, wurde das Holz karbonisiert, ergo eingebrannt, wodurch eine langlebige und wetterresistente Kohleschicht auf der Oberfläche entsteht. In Japan hat diese Technik der Holzkonservierung namens Yakisugi eine lange Tradition. Einen reizvollen Kontrast zur dunklen Außenhaut bilden die aus hellem, geöltem Fichtenholz bestehenden Oberflächen im Inneren der Kuben. Die Kuben sind ringsum gedämmt, denn sie müssen im Winter schnell auf Wohlfühltemperatur beheizbar sein, da es keinen Hotelmanager gibt, der dies vor Ankunft der Gäste erledigt. Die Appartements funktionieren wie Ferienwohnungen, das Einchecken erfolgt über einen Code.
Ferienappartements mit Durchblick
Auch der Basalt, der in der Nähe abgebaut wird, bekommt seinen Auftritt: als Waschbecken oder in Form von Platten im Außenbereich. Neben der Verwendung des nachhaltigen Baustoffes Holz war es für Architekt und Bauherr wichtig, dass sich die Kuben in die Natur einfügen und sie diese erfahrbar machen, sowohl durch die ganzflächige rahmenlose Verglasung auf der Südseite als auch von den davorliegenden Balkonen aus. Auch die einzelne Aufstellung der Boxen ermöglicht zwischendurch Blicke hinüber zu den Bergen. „Der komplette Alpenbogen ist von hier aus sichtbar – atemberaubend“, schwärmt Architekt Thomas Zach.
- Fabricant
- Schöck Bauteile
- Année
- 2023
- Statut du projet+
- Construit
- Bauherr
- Tavis GmbH
- Architekt
- Thomas Zach Architektur
- Planung Statik und Tragwerksentwurf
- Peter Mandl ZT GmbH
- Bauunternehmen
- Pfleger Bau GmbH






