Extension du Lycée Français de Vienne et rénovation du Studio Molière
Liechtensteinstrasse 37A, Vienne, Autriche
Introduction
La fonction culturelle du „théâtre“, sa situation et son organisation particulières dans un bâtiment historique et l’identité du nouveau bâtiment scolaire sont au centre du projet.
„Les contrastes s’attirent“
La tentative, au 19e siècle, d’ouvrir grand l’ancienne école équestre, se reflète dans le nouveau bâtiment scolaire. Elle est reprise et adaptée d’une façon actuelle contemporaine. Ce jeu de contrastes – des différentes technologies, modes de construction, matériaux et techniques énergétiques – s’exprime également par le reflet de l’ancien bâtiment sur la façade de la nouvelle école. Cet effet s’inverse dès qu’il fait nuit, lorsque le bâtiment scolaire éclaire l’ancien studio.
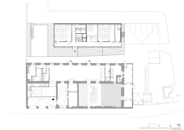
Studio Molière
Les fonctions centrales telles que l’entrée, l’accueil et la librairie, sont situées côté Liechtensteinstrasse, à côté et sous la salle, et sont donc clairement orientées vers l’espace public. Le nouvel espace d’accueil est en retrait par rapport à l’alignement des bâtiments et « inséré » dans le volume du bâtiment, afin de permettre au visiteur une première orientation dans un espace de parvis couvert. C’est une aire de séjour, d’attente. En supprimant les deux plafonds existants, cet espace gagne une générosité qui annonce déjà au visiteur la fonction spécifique.
Après avoir traversé l’espace d’accueil, le visiteur retrouve dans le foyer la même générosité annoncée dans la configuration du bâtiment. L’espace est ouvert jusque sous le toit, et ce sont les fenêtres et leurs grandes ogives mises à nue qui permettent d’inonder de lumière le foyer pendant la journée, notamment l’après-midi et le soir avant le début des représentations. L’espace d’une hauteur de 7,80 m annonce par ailleurs la salle qui est située derrière. C’est aussi un passage qui permet d’accéder au nouveau bâtiment scolaire et ensuite au bâtiment scolaire ancien.
La salle dont la conception structurelle et matérielle reste inchangée pour des raisons économiques clôt cette suite d’espaces généreux et mène peu à peu à l’intimité de l’espace théâtral.
Interventions dans la salle existante
Le niveau de l’arrière-scène est adapté à celui de la scène. Les locaux nécessaires au service (local traiteur, arrière-scène, réserve de matériel technique et stockage décors) sont situées à proximité directe du foyer. On accède à la régie scène avec la régie lumière et technique à partir de l’espace d’accueil près de l’entrée. Les installations techniques nécessaires au service (aération, sanitaires, chauffage, électricité, installation acoustique) sont renouvelées et mises aux normes.
Un buffet dans le foyer peut être aménagé avec un bar mobile via le local « traiteur ».
Les unités sanitaires pour les visiteurs du théâtre restent au même endroit. La réorganisation des sanitaires rend invisibles aux visiteurs les accès au local de chauffage existant en sous-sol et à la centrale d’aération située au-dessus.
Un nouvel escalier relie les loges de l’étage supérieur à la scène et à l’arrière-scène.
Le logement du gardien est prévu dans les combles qui seront donc en partie aménagés. Il y a aussi à cet endroit la chambre de passage. L’accès à ces deux espaces se fait par le nouvel escalier.
Construction
Etant donné des aménagements structurels aux interventions prévues les surfaces utiles du bâtiment sont réduites. La remise en état du plafond intermédiaire au niveau du nouveau foyer et des deux plafonds existants dans la zone d’entrée réduit donc les charges qui doivent être absorbées par la structure portante existante. Par conséquent elle est réalisable sans surcroît de construction importante. L’ensemble de la structure primaire descendant la charge est maintenue dans sa fonction.
Les mesures de construction allant au-delà de la démolition servent à sécuriser et à augmenter la portance de la structure existante.
La transformation du plafond en rondins de bois au niveau des chéneaux, en un plafond mixte en bois et béton armé, augmente la rigidité spatiale du bâtiment et assure la protection contre l’incendie exigée.
Si nécessaire, des grilles en béton armé seront intégrées au niveau des plafonds existants pour sécuriser certains piliers de maçonnerie.
Dans l’espace du nouvel appartement des combles du bâtiment, des cadres en acier remplacent les arbalétriers existants (de la charpente). Ces cadres permettent par une action simultanée avec les plafonds mixtes la suppression des entraits. Les charpentes métalliques entre les cadres, dans les murs extérieurs de l’appartement, réduisent les flèches des plafonds mixtes.
Installations techniques
Dans le cadre des mesures relatives aux nouvelles constructions, le plafond sous toit est optimisé thermiquement en appliquant des éléments d’isolation sur les chevrons. L’isolation peut être réutilisée dans le cas de l’aménagement ultérieur des combles en pente.
Les constructions des fenêtres historiques sont restaurées et étanchéifiées (dans la mesure du possible). De nouveaux portails en verre (entrée, accueil, librairie) sont dotées d’un double vitrage isolant. L’entrée de la scène est également dotée d’un nouveau portail en acier à isolation thermique.
Le chauffage existant est raccordé et adapté au chauffage urbain. La station de transfert pourrait être installée dans la zone du local actuel de chauffage au sous-sol, et le nouveau bâtiment sera raccordé via cet espace à une conduite enterrée.
Le mode de chauffage du hall d’accueil et de l’espace public reste quasiment inchangé, seules quelques adaptations seront nécessaires.
L’accueil, la librairie et l’appartement du concierge seront équipés d’un chauffage au sol.
Les autres locaux de service seront chauffés à l’aide de convecteurs.
La nouvelle centrale d’aération se trouve dans les combles et alimente la salle de représentation du Studio Molière à l’aide de sorties d’air de source situées dans le plafond en pente, en quantités d’air frais de 30m3/h/personne, conformément aux normes, et un taux de récupération de chaleur de 90% environ. Les locaux humides sont également aérés mécaniquement.
Du point de vue de la technique scénographique, le Studio Molière est mis aux normes, c'est-à-dire qu’il est équipé de nouvelles techniques d’éclairage, de haut-parleurs et de médias. L’acoustique est optimisée en ajoutant des éléments de confort acoustique.
L‘école
Respectant le bâtiment du Studio et sa façade, le nouveau bâtiment scolaire se trouve au sud-ouest, en retrait pour offrir un nouvel espace libre.
Sa façade reflète la façade historique du Studio, prêtant au lieu son caractère spécifique. Cette particularité est soulignée par l’orientation du bâtiment et des fonctions qu’il abrite, par le détail réduit de la construction de sa façade, ainsi que par la mise en scène lumineuse de cette atmosphère au coucher du soleil.
L’école s’organise dans un corps de bâtiment d’une orientation clairement est-ouest. L’accès horizontal aux salles de classes se tourne vers le bâtiment du Studio et permet aux étudiants de l’apercevoir à différents niveaux. L’entrée se trouve directement en face de la sortie existante du Studio Molière.
Au nord du rez-de-chaussée sont placés la Salle d´Examens et les locaux de service réservés aux livraisons et aux évacuations. Un escalier intérieur relie ces espaces. Les unités sanitaires sont situées discrètement derrière l’accès principal vertical en direction des différents étages.
Au premier étage se trouvent 2 salles banalisées et un dépôt. A proximité de l’escalier principal se trouve un espace de détente doté d’une petite loggia extérieure.
Le deuxième étage abrite 3 salles banalisées et un dépôt.
Le local technique et la salle générale des archives sont situés au sous-sol.
Construction
Le nouveau bâtiment est conçu comme un bâtiment en béton armé, avec des plafonds plats posés sur des piliers en béton projeté et des murs en béton armé au niveau des accès verticaux.
Le bâtiment présent deux niveaux d’appui : l’un sur le mur extérieur sud-ouest, l’autre dans le mur de séparation entre le couloir et les salles de classe. Les couloirs sont conçus comme des plafonds en saillie.
Les fondations seront réalisées à partir d’une semelle conformément à une expertise à venir.
Façade
La façade est conçue comme un mur rideau.
Les panneaux de façade des salles de classe et les locaux de service sont des panneaux sandwichs en aluminium équipés de stores textiles de protection solaire à commande automatique et manuelle.
La façade Est est une façade en verre avec des panneaux sandwich aluminium intégrées comme des ouvrants participant au bilan thermique global.
Le volume de l’escalier sur la façade nord est habillé d’un écran textile.
Installations techniques
La nouvelle aile avec les classes est conçue comme un bâtiment de basse consommation thermique selon les règles de l’art. Les valeurs moyennes U des fenêtres (triple vitrage) s’élèvent à 0,7 W/m2 K, celles des murs extérieurs et du toit, à 0,2 W/m2K.
Le chauffage des salles se fait par le sol. Les salles de classe sont aérées mécaniquement à l’aide d’éléments amenant l’air frais dans les classes et l’air vicié est évacué vers le couloir via des grilles de ventilation insonorisées. A partir de là, l’air passe librement dans le couloir vers les ventilateurs. Ces ventilateurs sont également dotés d’une récupération de chaleur et d’humidité maximum (roue d’enthalpie). Les installations de ventilation ainsi que la lumière sont commandées et activées par des détecteurs de présence. Ainsi on s’attend à des consommations d’énergie spécifiques de 22 kWh/m2/a.
Du point de vue sanitaire, on économise de l’eau, des eaux usées et de l’énergie en utilisant des robinetteries à basse consommation d’eau et des urinoirs sans eau.
Dans le nouveau bâtiment, les installations techniques sont conçues conformément aux souhaits du maître d’ouvrage selon les règles de l’art. L’éclairage utilise des ampoules LED, à basse consommation et efficaces.
Sur le toit non ombragé du nouveau bâtiment, on peut installer en option des capteurs solaires pour l’eau chaude comme chauffage complémentaire (semelle de fondation comme collecteur de masse).
Autre option : Des panneaux photovoltaïques générant de l‘électricité, par exemple pour de futurs véhicules
Concours 05 | 2012
Début des études 09 | 2012
Début du chantier 02 | 2015
Surface 3 591 m² (1 031 m² de rénovation)
Salle Studio Molière 240 places
- Architectes
- Dietmar Feichtinger Architectes
- Année
- 2016
- Statut du projet+
- Construit
- Client
- Agence pour l'enseignement français à l'étranger - Lycée Français de Vienne
Projets liés
Magazine
-
-
Bâtiment de la semaine
The Three-Body Problem: Trapped in a Wave Sandwich
Eduard Kögel, Scenic Architecture Office | 13.04.2026 -
















