The Railway Farm
Paris, France
Name of work in English
The Railway Farm
Name of work in original language
Ferme du Rail
Placement
Finalist
Prize year
2022
Year completed
2019 (Year began 2018)
Studios
Grand Huit; Melanie Drevet Paysagiste
Authors
SIMAY CLARA (1974 France); TURPIN JULIA (1975 France); DREVET MELANIE (1971 France)
Collaborators
Building technology: Scoping , Frédéric Cousin Landscape architect: Philippe Peiger Acoustical: Gamba Building advising: Pouget consultants Others: Albert & Cie Graphic design: Corentin Perrichot Construction company: Travail & Vie , APIJ BAT , Vaninetti , Chataing bois , Atelier R-ARE , Faure , CMF , Canone , Loï , Les Résillientes
Program
Social welfare
Labels
Community
Total area
1360 m2
Usable floor area
1000 m2
Client
Réhabail
Client Type
private
Map
LatLng: (48.88690709999999, 2.3848574)
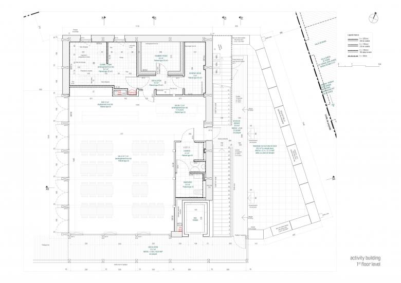
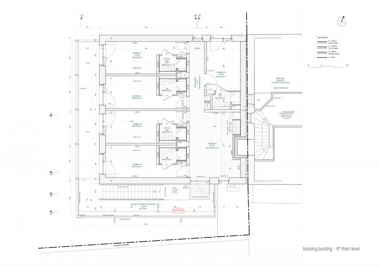
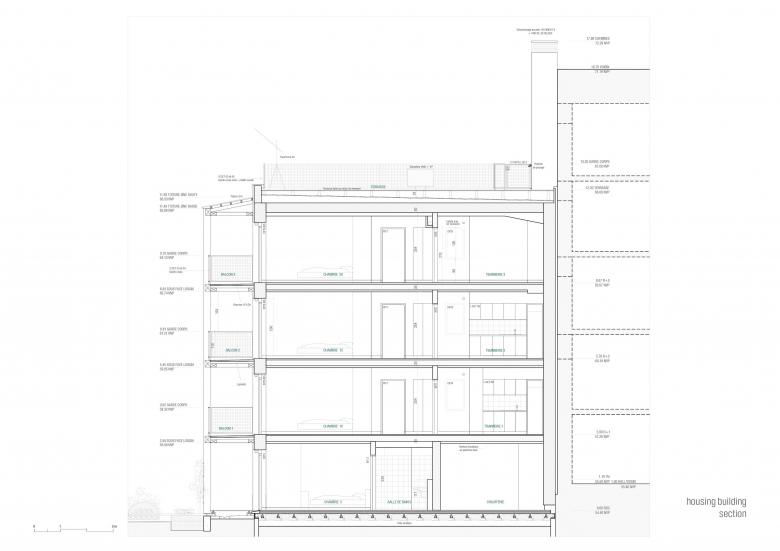
The Railway Farm (La Ferme du Rail) is a neighborhood solidarity facility based on urban agriculture which uses market gardening to produce the collected organic waste. The project was winner of the call for project "Réinventer Paris” launched by the city of Paris in 2017, located at the edge of the "Petite Ceinture", a former railway that surrounds Paris. Born from the desire of residents and local associations to see a place that combines urban agriculture and solidarity grow, the Ferme du Rail aims to integrate vulnerable people. It is part of the social fabric of the neighborhood and generates a service activity and agricultural production, creating jobs. It is the eco-designed fruit of shared governance between operators and project managers during the five years of its development. The farm offers emergency social housing and social reintegration of 15 social reintegration housing units, 5 social student housing units, an unheated productive greenhouse, a restaurant open to the public, a mushroom-growing cave and a permaculture garden. Its objective is to minimize the need for energy, food and financial resources by implementing a circular economy. Mainly, the project defends a model of a sustainable, social and united economy, linked to the interdependence between the actors of the project and the inhabitants. It is based on the skills of each person, called to reinforce each other, for the benefit of the neighborhood. The activities of the farm are organized into local and territorial exchange networks. The farmers offer the inhabitants of the district a set of services: collection and treatment of local organic waste or unsold goods, market gardening, organization of workshops and events, as well as a maintenance service for green spaces in the area. A neighborhood facility that caters to all audiences, the farm has a restaurant where products from the farm and partner farmers are tasted. It is also a place of awareness that responds to the urgent need for meetings and discussions around nature in the city and alternative food. Whether, about education in market gardening and composting activities, information on sustainable or organic agriculture, the exchange of good practices around urban ecology, the Ferme du Rail is a social and cultural resource which the inhabitants of the district can take up freely. The time of the construction site is an opportunity to extend the educational and social vocation of the project by educating different types of audiences as people on an integration course or architecture students. The building site was thinking as a learning site about ecological building materials: the structure is mainly made by wood, isolated by local straw bales and covered by cheap untreated wood. A research was leaded about reused materials with experimentations of recycled textile as insulation, reclaimed bathroom tiles, dry stone wall made by reused parisian sidewalk borders, standing timber floor and jardiniere made by reused joineries. The keywords are frugal, low-tech, but also innovative and performing.
















