The Sculpture Department of the Sichuan Fine Arts Institute
The teaching building of The Sculpture Department of the Sichuan Fine Arts Institute
Site: Chongqing, China
Designer: LIU Jiakun
Coworkers: SHI Wei, COOFEE Choi, etc.
Design: 10/2002-4/2003
Construction: 11/2003-7/2004
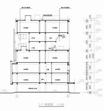
The comprehensive teaching building of the sculpture department in the Sichuan Fine Arts Institute lies in corner of the campus, a narrow and small plot.
The sculpture department needs a large number of classrooms with daylight. The needed floor space was bigger than the ground-floor allowed. We decided to extrude the building out of the limits, in order to get the largest area on the top floor. Carved volumes on the main body light the fourth and fifth floor of the building.
Aiming at Chongqing’s hot and humid climate, we pay full attention to the natural ventilation and the guide of the airflow in the room of the teaching building, and we have designed the double-deck empty tracery wall in the west and in the south where there is strong sunshine on day in order to offer the shade and ventilation on the wall.
Because most of the teaching buildings and factory buildings are red, the building surface is adopted rust red together with caesious cement to plaster to dissolve in the environmental tone.















