The World is Man's Theater
Rua B, 20, Fazenda Inhotim, Brumadinho, Brésil
Organized by Inhotim’s artistic direction and curatorial team, the exhibition “The World is Man’s Theater” continues a research initiated by the museum in 2021 on the work of playwright and activist Abdias Nascimento.
The World… features two unpublished videos, one by Jonathas de Andrade and the other by Barbara Wagner and Benjamin de Burca. The exhibition develops around the relationship between theatrical practice, artistic training and social activism. The starting point is the legacy of the Negro’s Experimental Theater (TEN) by Abdias Nascimento and its influence on the Theater of the Oppressed, by the also playwright Augusto Boal. Several archival materials contextualize the exchanges between Abdias, Boal and the practices and concepts that he consolidated in the Theater of the Oppressed. The two video works, on the other hand, have a strong connection with Boal's theme.
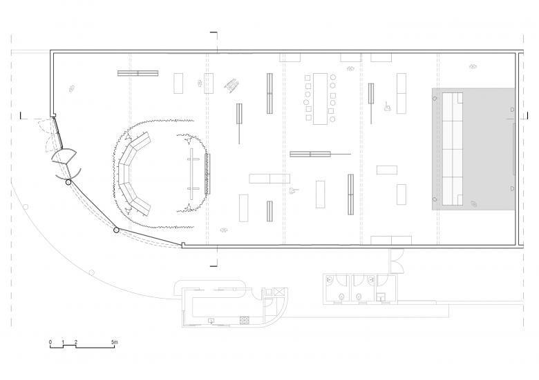
The expographic project seeks to translate the relationships between these different authors and uses theater architecture as a reference.
The proposal is marked by curtains and screens of very different materialities, but equally mundane. The one for the curtains is opaque and blurred, while the one for the screens is translucent and diaphanous. The curtains were made with tarpaulin in ocher, while the screens are made of white front planes (like the screens used on the facades of civil construction). The curtains enclose the dark video projection rooms, while the screens demarcate Abdias and Boal's archives in contiguous and illuminated environments.
The support for the curtains and screens is reminiscent of the architecture of a theater's scenic box, hence the use of scenic poles as a support element.
The documents about the playwrights are presented in vertical and horizontal supports. The main photos are on the self-supporting vertical panels, while the writings and newspaper articles are on the tables. The curatorship nuclei, “Augusto Boal, TEN and the Theater of the Oppressed” and “Theatre as an Instrument for the Worker's Self-Awareness”, conform two environments arranged in more or less fluid arrangements. Complementing the exhibition's documentation is a long table for consulting books on the two playwrights.
The curtain in the first projection room is wavy and houses the work “Fala da Terra”. The show continues with the many façade screens that serve to organize the two curatorial nuclei. They overlap in translucent layers, and the second and last projection room is gradually revealed as the visitor approaches the end of the route.
This ending is marked by the plain curtain in the second room. It is a curved surface that defines a “U” shaped gourd for the projection of “Olho da Rua”, a work by Jonathas de Andrade that closes the exhibition.



















