Um- und Ausbau Stadthaus von 1896
Das Stadthaus an der Holbeinstrasse ist das einzig verbliebene einer Zeile von vier gleichartigen Häusern aus dem ausgehenden 19. Jahrhundert. In der Nachbarschaft
sind mit den Jahren sehr viel höhere Bauten entstanden, wodurch das Haus optisch erdrückt und klein wirkte. Vom Zonenplan her nicht geschützt, bestand die Gefahr eines
Abbruchs. In Anbetracht der bewegten Geschichte des Gebäudes (siehe Thomas Blubacher: „Die Holbeinstrasse, das ist das Europa, das ich liebe.“ Schwabe Verlag Basel) und der zwar stark renovationsbedürftigen aber erhaltenswerten Substanz, war es den Eigentümern wichtig, ein Sanierungskonzept zu finden, das zum einen den feinen Altbaucharme erhält und zum anderen die vorhandenen Qualitäten mit neuen Massnahmen in einer Weise ergänzt, dass am Schluss eine Aufwertung resultiert, die dem Haus viele weitere Lebensjahre garantieren würde. Die augenscheinlichsten Veränderungen im Vorher – Nachher Vergleich sind in den beiden Fassaden zu finden.
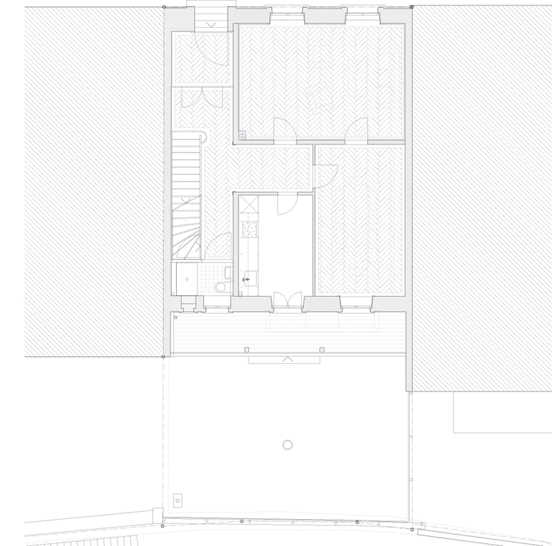
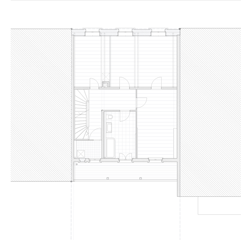
Strassenseitig wurde das zweite Obergeschoss mit einer Erhöhung der Fassade zum Vollgeschoss ausgebaut und so in Grösse und Proportion den anderen Bauten der
Holbeinstrasse angepasst.
Hofseitig wurde dem Haus eine sich über alle Geschosse erstreckende Terrassenschicht vorgelagert. Die ursprünglich recht unregelmässige Fenstergliederung der Hofseite wird mit dem holzregalartigen Terrassenvorbau beruhigt. Im Gegensatz zur steinernen und repräsentativen Strassenseite wirkt die Hofseite mit ihren horizontalen und vertikalen Bändern aus Holz und Edelstahlnetz bescheidener aber nicht minder präsent in ihrer Wirkung. Hier inszeniert sich die Neuerung ganz in der Tradition tiefer Altstadtparzellen mit den häufig anzutreffenden leichten Anbauten auf Rückseiten.
Im Innern galt es, von Fall zu Fall abzuwägen, ob Bauteile erhalten, wiederhergestellt oder neu ergänzt werden sollten. Im Sinne einer möglichst langlebigen Gestaltung wurde dazu tendiert, die Renovationsarbeiten nicht unmittelbar sichtbar zu machen. Nur die Bauteile, die im völlig neuen Kontext des Dachgeschosses liegen, lassen ihre Entstehungszeit klar erkennen und verfügen über eine eher abstrakte Formensprache.
Charakterbildende Details, wie beispielsweise Windfangtüren, Treppengeländer oder Originalparkett wurden hervorgehoben, etliche unschöne Überformungen aus den letzten Jahrzehnten beseitigt.
Der Ausbau wurde auf möglichst wenige, dem Original gerecht werdende Materialien reduziert, die dank ihrer hohen Qualität und Kompatibilität mit dem Bestand gut zu altern versprechen. Farblich wurden Bauteile wie Fenster, Fensterbänke, Holzelemente, Decken und Wandtapeten zur Hervorhebung ihrer Unterschiede differenziert, wobei die Wahl der Farbtöne eher zurückhaltend blieb.
- Architectes
- Forsberg Architekten AG
- Année
- 2013
- Statut du projet+
- Construit
Projets liés
Magazine
-
-
Bâtiment de la semaine
The Three-Body Problem: Trapped in a Wave Sandwich
Eduard Kögel, Scenic Architecture Office | 13.04.2026 -





















