Umbau Duplexwohnung Dolderstrasse Zürich
Die 2004 erbauten Wohnhäuser liegen hoch über Zürich an der Dolderstrasse. Die Duplexwohnung befindet sich im Ober- und Attikageschoss und überzeugt mit ihrer Südwestausrichtung mit perfekten Lichtverhältnissen.
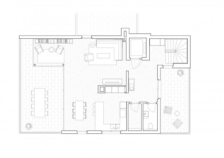
Die Raumstrukturen werden entsprechend den neuen Anforderungen angepasst
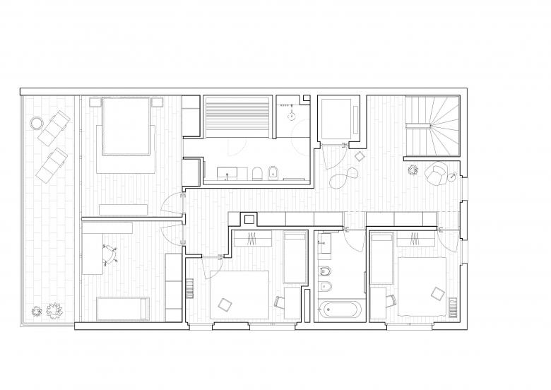
und ein zusätzliches Zimmer wird eingefügt. Wohnen, Essen und Kochen verbindet sich zu einer harmonischen Raumeinheit, komplettiert durch die Sonnenterrasse mit Blick Richtung See. Über den Korridor mit langer Schrankwand erschlossen, eine Etage darunter, befinden sich die privateren Zimmer.
Der Masterbedroom verfügt über ein Bad en suite. Die übrigen Zimmer teilen sich ein Bad. Böden in Eiche legen sich über die drei Geschosse und die verbindende Treppe, welche sich nach oben wendelt.
- Architectes
- Traxel Architekten
- Année
- 2021
- Statut du projet+
- Construit
- Client
- privat
- Équipe
- Caterina Schmidlin, Philippe Niffeler, Gabriela Traxel
- Möbel
- pan mobili













