Umbau und Instandsetzung Wohnhaus Freiestrasse
Freiestrasse, Zürich, Suisse
Das Gebäude an der Freiestrasse wurde 1889 als «Baumeisterhaus» erstellt. Es entstand im Rahmen der gründerzeitlichen Entwicklung in Hottingen. Es ist fünfgeschossig und hat ein markantes Walmdach. Der Grundriss und die laterale Erschließung mit einem Treppenhausrisalit sind typisch für diese Zeit. Im Laufe der Jahre wurde das Gebäude mehrfach umgebaut und umgenutzt. Aus dem Wohnhaus wurde ein Bürohaus und 2001 eine kleine Schule. Dabei änderten sich Elemente wie die Treppenhauslage und die Raumproportionen. Die äußere Erscheinung blieb jedoch weitgehend erhalten.
Ziel des Umbaus war es, das Gebäude in seine ursprüngliche Wohnnutzung zurückzuführen und dabei so viele historische Elemente wie möglich zu erhalten. Die Raumstruktur wurde auf den ursprünglichen Grundriss rekonstruiert und mit modernen Anpassungen ergänzt. Bestehende Materialien, insbesondere die Massivholzböden, wurden freigelegt und sorgfältig aufgefrischt.
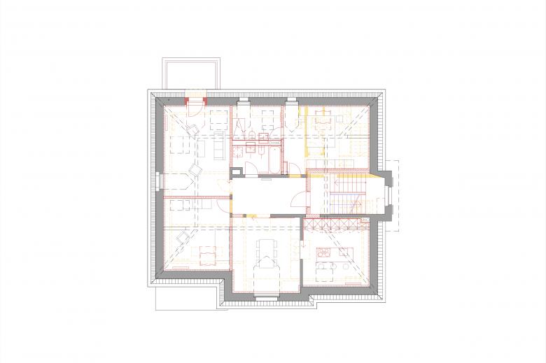
Zurück zur Wohnnutzung: Der Umbau führt das Gebäude zurück zur ursprünglichen Nutzung als Wohnhaus, mit 5.5-Zimmerwohnungen im ersten bis dritten Stock und einer 4.5-Zimmerwohnung im Dachgeschoss.
Sanierung und Rückführung der Raumstruktur: Der Umbau sieht vor, die ursprüngliche Raumstruktur wiederherzustellen und dabei behutsam moderne Anforderungen zu erfüllen. Das Treppenhaus wird wieder an seiner ursprünglichen Position integriert.
Neue Nassräume und Küche pro Etage: Jede der bestehenden Etagen erhält zwei neue Nassräume sowie eine Küche, die den heutigen Anforderungen an Wohnkomfort gerecht werden.
Anpassung an moderne Anforderungen: Dabei werden an allen Geschossdecken von unten sowohl der Brandschutz als auch der Schallschutz an die heutigen gesetzlichen Anforderungen angepasst, ohne dabei die bestehende Gebäudehülle zu verändern. Die äussere Erscheinung des Hauses, die das historische Bild prägt, bleibt unverändert und wird erst später aufgefrischt.
- Architectes
- Andri Cajos Architekten AG
- Année
- 2024
- Statut du projet+
- Construit
- Bauherrschaft
- Privat
- Baumanagement
- Benimag GmbH
- Nutzung
- 4 Mietwohnungen in ehemaliger Privatschule



































