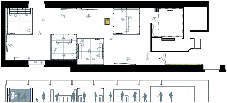
Vedi Napoli e poi muori. Grand Tour der Mönche
- Architectes
- Alberto Alessi Architecture
- Année
- 2014
- Statut du projet+
- Construit
- Arbeitsgemeinschaft Kommunikation, Grafik & Raum
- Atelier Gassner, Schlins
- Ausstellungsaufbau
- Tachezy & Vonaesch GmbH, St.Gallen
Projets liés
Magazine
-
-
Bâtiment de la semaine
The Three-Body Problem: Trapped in a Wave Sandwich
Eduard Kögel, Scenic Architecture Office | 13.04.2026 -












