Bildungs- und Nahversorgungszentrum WEST
Bachlechnerstr.35, Innsbruck, Autriche
arge reitter - eck&reiter
DAS NAHVERSORGUNGSZENTRUM
Die Nordseite und Nordostecke ist wichtigste und attraktivste Verkaufsseite (Autofahrer, die an der Ampel halten, die Bushaltestelle).
Daher hier ein zweigeschossiges Schaufenster, die gezeigten Waren sind die Stars. Die zweigeschossige MALL durchzieht das Nahversorgungszentrum von der Nord- zur Ostseite.
DIE ABGESENKTE EINKAUFSEBENE
Über 80% der Einkäufe des täglichen Bedarfs werden mit dem Auto getätigt. Es erhöht den Komfort für den Kunden erheblich, wenn Parken und Verkauf auf einer Ebene stattfinden.
Neben den Praktischen Vorteilen für Kunden mit dem Auto eröffnet sich für den Fußgänger und Mall- Flaneur ein phantastischer Überblick von atemberaubender Großzügigkeit.
Der Markt erfährt durch die vierseitige Fassade und die umlaufende Galerie eine enorme Aufwertung. Vom zweiten Untergeschoss bis ins EG führt eine Kaskade von Rollsteig und Rolltreppe, zwei weitere Rolltreppen sowie Lifte erschließen das erste Obergeschoss.
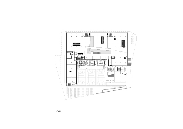
DIE SCHULE
Die vorhandenen Straßen im Norden und Osten wie auch der Wunsch nach Freiklassen verlangt Introvertiertheit und Ruhe bei gleichzeitiger Offenheit.
DER ZUGANG
Für uns ist es wichtig die Kinder „von der Straße“ wegzubringen. Ein großzügiger VORPLATZ auf 5m Höhe in der Morgensonne, klar vom EKZ abgehoben. Mit kurzem Weg von der Bushaltestelle im Norden und den Fahrradstellplätzen im Süden am neuen Radweg. Die Benutzer der Schule sind im öffentlichen Raum sichtbar. Eine kontinuierliche Weiterführung des Fußweges über Garderobe und eine breite Treppe. Ähnlich einem Amphitheater führt sie in die quer durchgesteckte Pausen- und Freizeitzone. Die tägliche Überwindung von 10 Höhenmetern wird transformiert in eine spannende Raumabfolge. Ein längliches Atrium ist als Freiraum dem Speisen und der Nachmittagsbetreuung zugeordnet. Es bietet neben Nordlicht einen großzügigen Raumzusammenhang mit dem Turnsaal und Durchblick nach Süden.
DIE ORGANISATION
Entlang der durchgehenden Mittelzone sind zwei weitere, Ruhe stiftende Atrien (mit schönem Nordkettenblick) angeordnet. Keine der Stammklassen ist zu den lauten Straßen orientiert, Blickbeziehungen vom Schulinneren nach außen und umgekehrt dennoch möglich. Die 4 Klassencluster pro Geschoss sowie die Sonderräume sind zusätzlich durch offene Brücken quer verbunden.
Es werden so vielfältige, mehrdimensionale Wegbeziehungen ermöglicht. Die liegende Achterschleife als Raumerfahrung. Ein differenziertes, reiches Angebot an Freiräumen, offen und überdeckt lädt zum verweilen ein. Eine weitläufige Dachlandschaft und ein Sportplatz runden das Lebens-Raumangebot ab.














