Wien Museum Neu
Wien, Autriche
Vier Fragen – eine Antwort:
Wir finden die Jahrhundertchance vor, seit vielen Jahrzehnten diskutierte, offene Fragestellungen in einem zu beantworten:
Die Frage der Fassung und des Abschlusses des östlichen Karlsplatzes.
Die Frage der Fassung und Rahmung der Karlskirche.
Die Frage des Attraktivierens und der Aktivierung des östlichen Karlsplatzes.
Die Frage des Attraktivierens und Ins-Stadtbild-Setzens des Wien Museums.
Eine Antwort – zwei Richtungen:
Eine Bewegung aus der Längsrichtung des Karlsplatzes kommend, beginnend mit den Otto-Wagner-Pavillons, umspielt das bestehende Museum und teilt sich in zwei Richtungen, die volumetrische Ausformungen erzeugen: einen horizontalen Flügel und einen vertikalen Flügel.
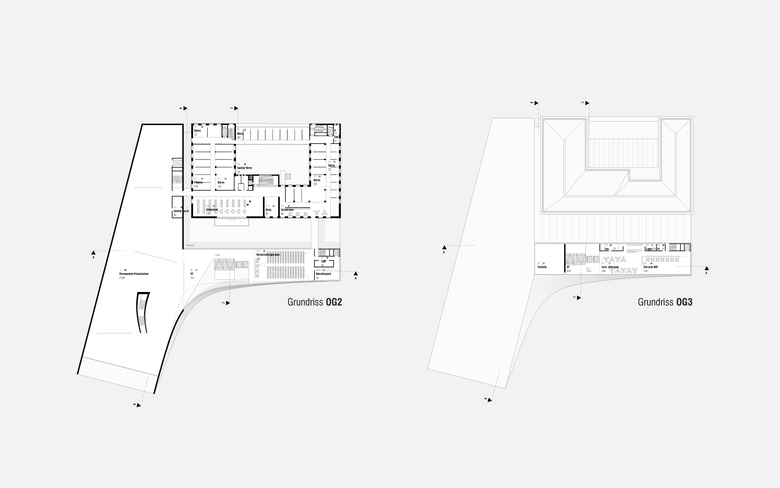
Der horizontale enthält als „Museumsflügel“ die Hauptausstellung und präsentiert das erste republikanische Museum Wiens selbstbewusst im Herzen der Stadt. Dabei schwebt er jedoch und ragt in den Raum des ehemaligen Wientals, das unterirdisch nach wie vor von der Wien und den Verkehrsströmen der U-Bahnlinien durchflossen wird. Durch diesen bewussten Schritt in das fluide Element wird erreicht, dass der gewachsene Boden des Parks und sein historischer Baumbestand kaum angegriffen werden muss.
Ein öffentliches Museum darf öffentlichen Raum beanspruchen, nimmt aber sinnvollerweise den Luftraum über den Verkehrsbändern der Lastenstraße und nicht Parkfläche in Anspruch!
Zugleich reiht es sich gleichberechtigt in die Gruppe der Kulturinstitutionen ein und bildet zusammen mit dem Musikverein und dem Künstlerhaus ein klar wahrnehmbares neues kulturelles Dreigestirn.
In größerem Maßstab betrachtet, erhält das Museum die Wertigkeit und Position des Konzerthauses und Akademietheaters, in Spiegelung um die Achse des Schwarzenbergplatzes.
Schlussendlich wir der Karlsplatz jetzt räumlich gefasst. So wie der Fluss des Raumes – in Analogie zum Fließen des Wienflusses – beim Übergang vom Naschmarkt im Westen durch Secession und Verkehrsbürogebäude verengt wird, wird er dies nunmehr auch beim Übergang zum Schwarzenbergplatz. Schon Otto Wagners erste Museumsprojekte (1901 – 1903) zeigten an dieser Stelle in den Verkehrsraum ragende Gebäudeteile.
Der vertikale Flügel hingegen enthält als „Kommunikationsflügel“ alle dialogorientierten Funktionen und stellt sich schützend vor den Haerdtl-Bau. Er erreicht dabei die Gesimshöhe der Technischen Universität, die der Terrassenebene der Karlskirche entspricht.
Somit präsentiert sich das Wien Museum deutlich sichtbar auch allen, die am Karlsplatz unterwegs sind oder sich dort aufhalten. Durch die neue Höhenentwicklung des Museums findet der Karlspatz einen prägnanten und angemessenen Abschluss. Der Blick auf dahinter liegende Dachlandschaften wird hingegen abgeschottet.
Die räumliche Rahmung der Karlskirche durch zwei gleich hohe Gebäudefronten wird nun endlich erreicht. Das Winterthurgebäude wird als ein in den Hintergrund tretendes Objekt empfunden. Durch die bewusst nicht-achsiale Stellung dieser Gebäudefronten wird der Raumfluss des Karlsplatzes – in Anlehnung an Lois Welzenbachers städtebauliche Studie (1949) – in Richtung der Karlskirche gelenkt, so dass diese, immerhin namensgebend, den eigentlichen End- und Höhepunkt der Entwicklung des Karlsplatzes darstellt!
Ein Museum – ein denkmalgeschützter Bestand:
Wir sehen das Wien Museum Neu als weit über seine baulichen Grenzen hinaus wirkende Einheit, mehr als eine Zone bzw. als eine Plattform, die bespielt ist. So leitet sich seine nördliche Kante exakt aus der Flucht der Otto-Wagner-Pavillons ab. Wir betrachten daher die Pavillons als erste Ausstellungsstücke des Museums für Wien.
Das zweite Ausstellungsstück des Museums hingegen ist der Haerdtl-Bau selbst! Der Haerdtl-Bau präsentiert sich nun als Pavillon innerhalb einer neuen, großzügigen Museumshalle. Als Zeitdokumente der 50-er Jahre des vorigen Jahrhunderts können zumindest die beiden Hauptfassaden völlig unangetastet, ohne jegliche bau- und energietechnische Ertüchtigung, gezeigt werden, da sie dem Außenklima nicht mehr ausgesetzt sind.
Der Haerdtl-Bau erhält seine neue Rolle als Haus für die Mitarbeiterinnen und Mitarbeiter des Museums. Das Schmuckstück der Stiege wird zum zentralen Element der internen Kommunikation. Die jahrzehntelang aus musealen Gründen verbauten Fenster können wieder geöffnet werden!
Ein Museum – ein neuer Organismus:
So komplex das Wechselspiel der Antworten des Projekts in den Räumen des Städtebaus und der Architektur sein mag, so einfach funktioniert es hingegen:
Die Landschaft des Karlsplatzes zieht sich leicht terrassiert und deren formale Gestaltung reflektierend als Aktionsraum auf die Eingangsebene des Hauses. Dort betritt man es mittig. Rechterhand befinden sich Museumsshop und Cafe, dessen Freiterrasse vor der Karlskirche einen der besten Plätze der Stadt einnehmen wird.
Linkerhand kann man sich zwischen Wechselausstellung und permanenter Ausstellung entscheiden. Im Falle des letzteren nimmt man die Treppe nach oben, beginnt die Ausstellung über eine Brücke in den Haerdtl-Bau, der zwar selbst ausgestellt wird, hier aber zugleich ein letztes Mal selbst ausstellt. Die historischen Direktionszimmer liegen am Weg. Im nächsten Geschoß höher erreicht man die eingeschoßige, hallenartige Hauptfläche, in der jede Ausstellungskonfiguration und jeder Rundgang möglich sind.
Auf gleichem Wege sind auch die dialogorientierten Funktionen erreichbar: das Kindermuseum, das Atelier, der große Veranstaltungsraum und, „on the top“, der Wien-Raum mit Terrasse und herrlicher Aussicht auf die barocke Szenerie der Karlskirche sowie auf den gesamten Karlsplatz. Ganz nebenbei sind alle diese Funktionen über eine zusätzliche, eigene Vertikalerschließung separat andienbar.
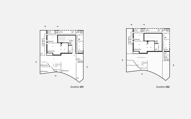
Entscheidet man sich hingegen für die Wechselausstellung, kann man im Erdgeschoß linkerhand sofort den ersten Raum betreten. Dieser ist bewusst als gläserner (aber verdunkelbarer) „Trittstein“ in den öffentlichen Raum vorgeschoben und wird von öffentlicher Durchwegung umspielt. So können aktuelle Ausstellungen auch von Passantinnen und Passanten wahrgenommen werden. Ein eigener Eingang ermöglicht auch das temporäre Herauslösen dieses Raums aus dem Gesamtverband des Museums.
Weiter jedoch geht es hinunter in das Untergeschoß, das den Wechselausstellungen jede Möglichkeit bietet. Verlassen kann man sie wiederum, indem man in den abgesenkten ehemaligen Hof des Altbaus sticht, dort langsam empor schreiten und als Endpunkt des Rundgangs das alte Foyer Haerdtls betrachten kann.
Ein neuer Organismus, eine neue funktionale, räumliche und stadträumliche Figur ist entstanden: auf viele offene Fragen eine mutige Antwort.
In dieser Antwort verdichten sich die topografischen und topologischen Eigenschaften des Landschaftsraumes mit den morphologischen Parametern des engeren und weiteren Kontextes des Stadtraumes zu einem einheitlichen Gesamtgefüge.
Der Genius Loci hat die Antwort evoziert.
- Architectes
- Pichler & Traupmann Architekten
- Année
- 2015
- Statut du projet+
- Design
- Client
- Wien Museum Projekt GmbH
- Wettbewerbsentwurf
- Architekt Mario Gasser
- Projektteam Wettbewerb
- Bartosz Lewandowski, Peter Grandits













