Wohnloft PG6
Wien, Autriche
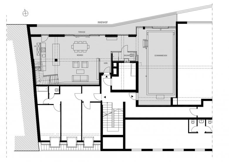
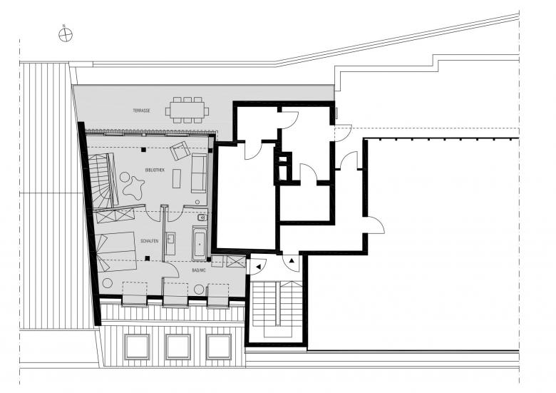
Ein 120 m² großer, privater Wellnessbereich im 4. Stock eines Betriebsge-bäudes aus den 60-er Jahren wurde zu einem „Wohnloft“ umgestaltet und mit einem ca. 50m² großen Dachraum verbunden. Das alte Schwimmbe-cken ist noch intakt und befindet sich mitten im neu geschaffenen Wohn-raum. Die alten STB -Strukturen wurden wieder freigelegt und geben dem Loft seine charakteristische Note.
- Architectes
- SHARE architects
- Année
- 2020
- Statut du projet+
- Construit
- Client
- Privat
- Statik
- ghp gmeiner haferl & partner














