world-architects.com
Profiles of Selected Architects
Profils
Projets
Offres
Événements
Magazine
Sujets
Réseau
Connexion
S'inscrire
Français
Català
Deutsch
English
Español
Français
Italiano
Nederlands
Português
中文
日本語
Català
Deutsch
English
Español
Français
Italiano
Nederlands
Português
中文
日本語
World-Architects
Projets
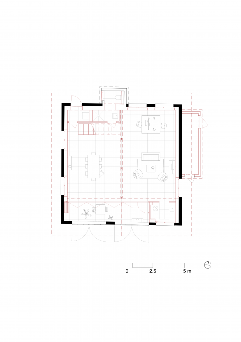
Zwinghof Garage
Neerach, Suisse
Photo © Roland Bernath
Umnutzung einer ehemaligen Garage zu einem Wohnatelier.
Photo © Roland Bernath
Photo © Roland Bernath
Photo © Roland Bernath
Photo © Roland Bernath
Dessin © Neon Deiss
Photo © unbekannt
Usage mixte
Architectes
Neon Deiss GmbH
Année
2021
Statut du projet+
Construit
Kreislaufwirtschaft
Zirkular AG
Projets liés
Moos
playze
Reiters Reserve Premium Suiten
BEHF Architects
Erweiterung und Instandsetzung Hallenbad Altstetten
MIYO Visualisierung
Neubau von fünf Einfamilienhäusern
Bäumlin+John AG
The Forge in der 105 Sumner Street in London
Kiefer Klimatechnik GmbH
Bauleiter/in oder Hochbautechniker/in (m/w/d), 80–100%
schulzarchitektur gmbh
Projektarchitektin / Projektarchitekt ETH/FH 80%-100%
RUPRECHT ARCHITEKTEN
Wettbewerbsarchitekt/in 80-100%
RUPRECHT ARCHITEKTEN
plus
Magazine
Headlines
Getty Center to Close Temporarily for 'Major Modernization Efforts'
John Hill
| 10.04.2026
Insight
Energy-Positive Construction
Elias Baumgarten
| 09.04.2026
Headlines
Kengo Kuma To Design New National Gallery Wing
John Hill
| 08.04.2026
Film
Architecture for People, Not for Architects
John Hill
| 08.04.2026
Found
2 x 2 = 4 Books from 2 Architects
John Hill
| 07.04.2026
Autres projets de Neon Deiss GmbH
Landgut
Hausen am Albis, Suisse
Schule Mühlematt
Belp, Suisse
Tagesschule Wetzwil
Herrliberg, Suisse
Schulanlage Feld
Meilen, Suisse
Zwinghof
Neerach