Wohnüberbauung Grünwald
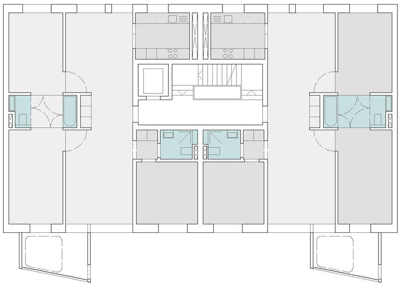
Ein ringförmiges Wohngebäude vereint die Wohnsiedlungen dreier Bauträger und sucht bewusst den maximal möglichen Masstab auf der letzten, zusammenhängend unbebauten Parzelle im Zürcher Rütihofquartier. Die Grossform schlägt in diesem heterogen gewachsenen Konglomerat von neueren Wohnsiedlungen eine Uminterpretation der öffentlichen Räume vor. Bislang lediglich dem Verkehr gewidmete Strassenräume werden rundum mit Eingängen und öffentlichen Erdgeschossnutzungen bespielt. Im Innern entsteht eine weitläufige, von Lärchen und Zierkirschen gesäumte Wiese, welche dem ganzen Quartier als Park zur Verfügung steht.
Programm
78 Alters- und 193 genossenschaftliche Familienwohnungen, Supermarkt, Quartierzentrum, Kindergärten, Krippe, Hort, Pflegewohnung, Spitex, Parkgarage, öffentlicher Park und Quartierplatz.
Verfahren
Zweistufiger Projektwettbewerb, 1. Rang (2005)
- Année
- 2005
- Statut du projet+
- Design
- Client
- Stiftung Alterswohnungen der Stadt Zürich, Baugenossenschaft Sonnengarten, Gemeinnützige Bau- und Mietergenossenschaft Zürich vertreten durch EBasler + Partner AG
- Équipe
- Franziska Schneider, Jens Studer, Urs Primas
- Landschaftsarchitektur
- Müller Illien Landschaftsarchitekten
- Baumanagement
- Caretta + Weidmann Baumanagement AG




