Umbau Hegibachstrasse

Hegibachstrasse 132, Zürich, Suisse
Photo © Schwarz

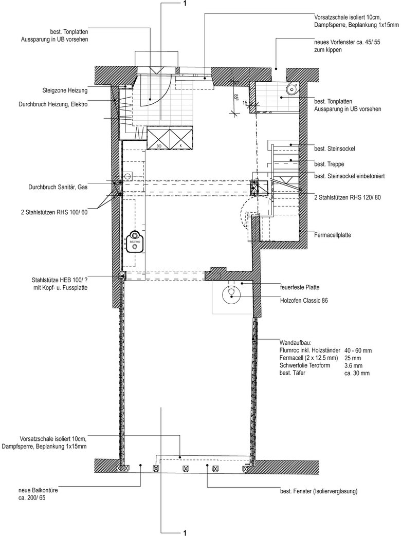
Das Bauernhaus wurde um 1680 gebaut. Vor circa 150 Jahren wurde das Gebäude in einzelne Hausteile als reine Wohnhäuser eingeteilt. Während den archäologischen Untersuchungen, zeigten die alten Haustrennwände dass es sich früher um Stallungen handelte. In Zusammenarbeit mit der Denkmalpflege wurde das Haus umgebaut. Erhaltenswerte Teile wie Böden und Innentüren wurden saniert und stehen heute im Einklang mit den neuen Interventionen. Die Fassaden und das Dach wurden nicht renoviert. Augrund des minimalen Lichteinfalls wurden Erd- und Dachgeschoss geöffnet und die erstellten Wände aus den letzen 50 Jahren entfernt.

Realisierung: 2004

Planung und Ausführung: Schwarz & Schwarz Architekten, Mario Serratore

Farbkonzept Innen: Barbara Haas, Atelier Capri

Photo © Schwarz
Image © Schwarz
Année
2004
Statut du projet+
Construit

Autres projets de Schwarz & Schwarz 

Einbau Nasszelle Wohnung
Bern, Suisse
Neubau MFH Kilchberg
Kilchberg, Suisse
Neubau/ Anbau EFH, Haldenstrasse
Regensdorf-Watt, Suisse
Umbau EFH Way
Adliswil, Suisse
Neubau Terrassenhaus Meilen
Meilen, Suisse