Umbau Fabrikgebäude in Schule
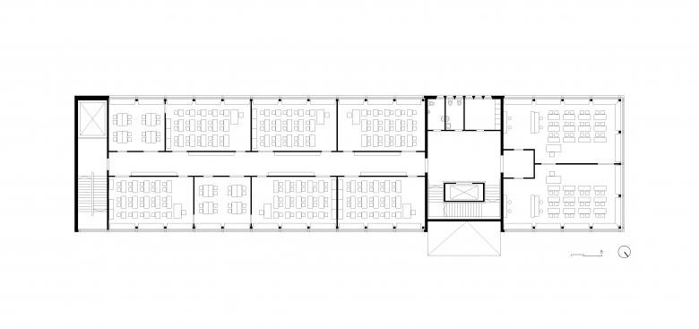
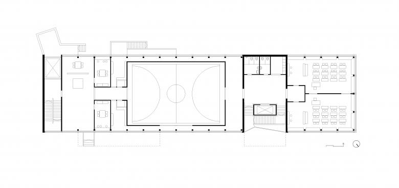
Die Platznot an Bieler Schulen ist ein stetig wiederkehrendes Problem, zu dessen Lösung auch ungewöhnliche Wege beschritten werden. So nutzte etwa die Primarschule Madretsch ein ehemaliges Fabrikgebäude zum Schulhaus um. Mit knappem Budget und wenig Zeit entstand ein Provisorium mit zehn Klassenzimmern und einer Turnhalle.
Für den Umbau setzten die Architekten auf einfache und kostengünstige Konstruktionen. Die Turnhalle zum Beispiel besteht aus Ständerwänden, die nur auf einer Seite beplankt wurden, sodass die Konstruktion an der Aussenseite sichtbar bleibt, wohingegen die Innenseite eine glatte Oberfläche hat. Sie ist in Rosa gestrichen – einer Farbe, die an Zuckerwatte
auf dem Jahrmarkt denken lässt. Zusammen mit dem rosafarbenen Boden entsteht ein Gesamteindruck, der die einfachen Materialien in den Hintergrund treten lässt. Alle anderen Farben schreiben die Geschichte des Hauses fort. Der rote Anstrich der neuen Garderobenwände in den Korridoren nimmt die Farbe des bestehenden Fussbodens auf. Gebrauchsspuren des abgenutzten, fleckigen Bodens wurden zum Leitmotiv des Umbaus erhoben.
Farbkleckse wurden gescannt, vergrössert und an ausgewählten Stellen appliziert. Kunstgriffe wie diese waren günstiger als Malerarbeiten. Das Ergebnis ist eine Schule mit besonderer Atmosphäre. Statt eines edlen Innenausbaus zeigen die unprätentiösen Räume die Spuren der Vergangenheit. Aus einer Fabrik wurde eine Werkstatt des Lernens.
- Année
- 2023
- Statut du projet+
- Construit
- Client
- Stadt Biel
- Équipe
- Barbara Schwärzler, Farb am Bau, Bauleitung GmbH










