Maaglive
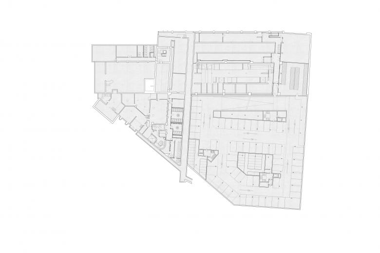
The Maag complex is located in the very centre of Zurich, directly adjacent to the Prime Tower and Hardbrücke railway station. By leveraging the industrial past of one of the last remaining plots of the Zurich West development plan, the Maaglive project aims to transform its site into a vibrant urban centre with residential units and cultural and commercial space. Building K, an established adaptive reuse of a listed industrial building that houses well-frequented restaurants and cultural institutions, will be retained to reflect the site’s history.
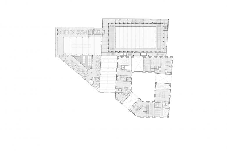
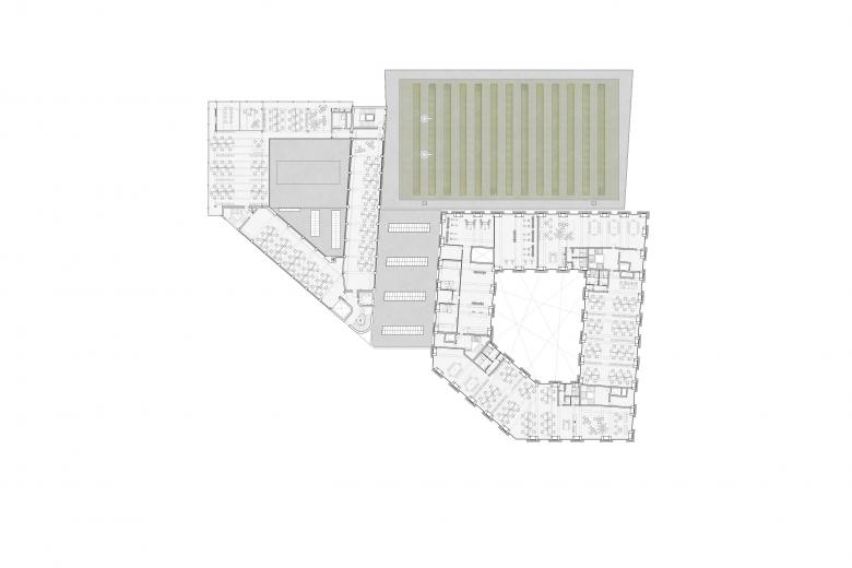
Next to Building K, on the footprint of the former Maag production facility, a new intervention will clearly reference the listed building in both typology and form. The new building will encircle a sheltered courtyard with storey-high entry portals that both connect it to the city outside and allow urban life to penetrate within. Likewise, a wide-ranging programme, including cultural, hospitality, retail, office, studio, and co-working spaces as well as a small indoor market, a fitness centre, and compact maisonette flats, will draw people into the complex.
The 82 interlocking maisonettes will occupy the building’s upper six storeys. A central corridor will provide access to the units, which by turn stretch up or down from their entry levels. Despite their relatively small size, double-height living areas will give the impression of space. The maisonette typology will also provide units with a dual orientation to both the block’s bustling, noisy exterior and its tranquil interior courtyard.
Construction and Material Palette
Doubled-up structural ribs lend the proposal an industrial aesthetic and allow flexibility of use. The space between the ribs is alternately occupied by either bathroom or stair cores, an organisational rigour mirrored on the building’s exterior by the vertical banding of precast concrete elements. In between these bands, luminous ribbons of bronze-coloured glazing, interspersed with street-side loggias and courtyard balconies, provide visual contrast. Next to the new intervention, an extension to Building K will also have a distinctly industrial aesthetic, with its ribbed floor slabs visible behind a glazed façade.
- Année
- 2020
- Statut du projet+
- Design













