Begegnungszentrum Reformierte Kirche Sarnen
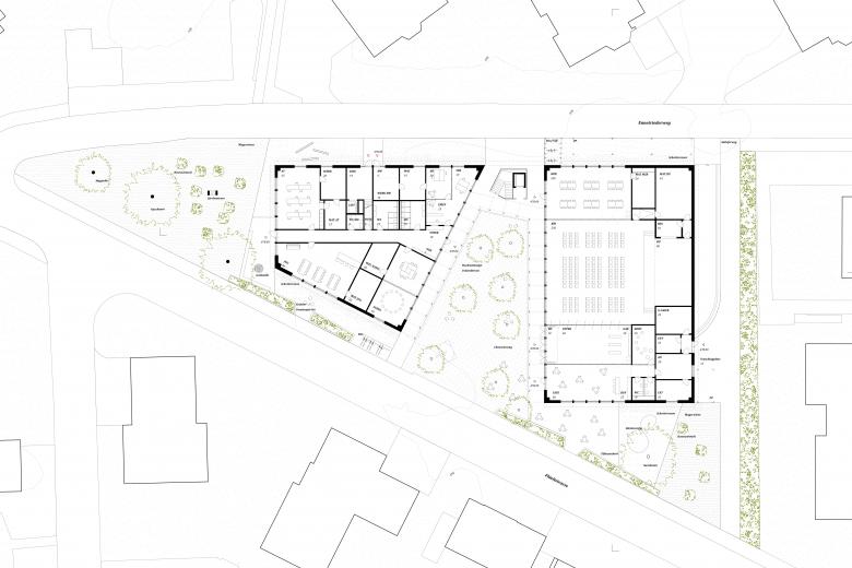
Der Vorschlag ist ein architektonisch spezifischer Beitrag für diesen Ort. Die Konstellation eines zentralen, halb öffentlichen Aussenraums, gefasst von einem umklammernden Volumen als verbindendes Begegnungszentrum mit einer prägenden Aussenwirkung, ist die Absicht des Entwurfs. Die beiden Volumen werden mit einer weich geformten Haube überzogen, sie fassen das Gefüge formal zusammen, geben dem Bau einen spezifischen Ausdruck. Durch die niedrige Traufe wird der Massstab der umliegenden Wohnbauten aufgenommen. Der grosszügige zentrale Platz mit seinem halb öffentlichen Charakter und der ausgewogenen Form ist Verbindungs- und Begegnungsraum zugleich. Die umlaufende gedeckte Vorzone unterstützt dies zusätzlich.
Das Café bildet den Auftakt am Zugang zum zentralen Aussenraum. Der grosse Saal spannt sich mit der mittig platzierten Bühne über die ganze Tiefe des Gebäudes auf und kann flexibel zum Mehrzwecksaal und Foyer erweitert werden.
Die beiden Wohneinheiten im 1. Obergeschoss sind auf zwei oder drei Seiten ausgerichtet und verfügen jeweils über eine im Dach integrierte Loggia.
- Statut du projet+
- Design
- Équipe
- Caterina Schmidlin, Philipp Niffeler, Gabriela Traxel
- Landschaftsarchitektur
- Lehner Landschaftsarchitektur, Ebnat-Kappel
- Bauingenieur
- Synaxis AG, Zürich










