Piazza in a room by Wutopia Lab
Project name: Piazza in a room
Architectural firm: Wutopia Lab
Website: http://www.wutopialab.com/
Chief Architect: Yu Ting
Project Architect: Sun Liran
Design Team: Kuang Zhou, Pan Dali, Gao Bolong (intern)
Design Development: Shanghai C-yu Space Design Co., Ltd
DD Team: Dai Yunfeng, Guo Jianv, Wu Xiaoyan, Zhao Ruyi, Cui Xiaoxiao, Wang Binbin, Ma Chuanchuan, Zhang Minmin
Lighting Consultant: Zhang Chenlu, Du Yuxuan
Material Consultant: Sun Jing
Photography: CreatAR Images
Performance: Zhou Jitian, Zhu Liqian
Client: Ford Thru (Shanghai) Enterprise Development Co.,LTD
Construction: ZOOM architecture
Construction Team: Wang Liyang, Chen Weiming, Wu Jishun
Location: Shanghai Historical Museum, West Building, Shanghai, China
Area: 170㎡
Completion: 2022.12
Video: https://youtu.be/91LcorQxfPg
Piazza in a room, the Mapoly Coffee in Shanghai Historical Museum, designed by Wutopia Lab will be opened in February 2023 on the first floor of the museum's West Building.
Coffee and Shanghai
You can find Japanese, Korean, American, Taiwanese or Southeast Asian cafés, and you can even find a run-down but proudly maintained 1980s Taiwanese Japanese café on Yongkang Road, but there is no such one that represents Shanghai. However, Shanghai has a long history of cafés. In Eileen Chang's essay "Double Voices" published in Tiandi magazine in 1945, she began by saying that when she went out with her friends, no matter what they did, they would always end up in a café. At that time, cafés in Shanghai were communal spaces in the city, serving beverages and snacks, but they could also be dancing halls, meeting rooms, libraries, information centers, and everyday social places.
Coffee and Piazza
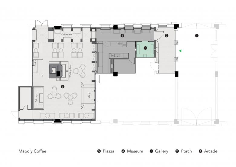
The plan of café is shaped like a knife-handle. The bureau of cultural heritage requested to preserve the facade. In addition, the west building is the former stables of the horse racing hall, so the windows of the façade are all high and require frosted glass, which causes a lack of indoor lighting and exterior views.
The café is sealed in the first floor of the west building. It suddenly occurred to me, if I regard the interior façade as exterior, isn't the main space outdoor? Such exterized-interior could lift the seal.
The interior space is actually hard to deal with since there is also a huge column in the center. The most public place in the urban typology would be those small squares in Europe. I decided to create a cheerful communal place, a Shanghai café, by combining various building components into an abstract square implanted in the interior of the first floor of the West Building, referring to A Pattern Language (Christopher Alexander, Murray Silverstein, and Sara Ishikawa, 1977).
The central pillar was repurposed as a monument with a wishing pool, behind which a segment of my novel is inscribed. Around it, there are stairs, a colonnade, a stage with a fireplace, and a glass box as a balcony. There can be flowers, coffee, a little wine, love, gossips, pets, stand-up comedy, a sudden song of memories of the Alhambra and an impromptu tango. There can be hustle, cheerfulness as well as hidden jealousy.
"Yesterday is but today's memory and tomorrow is today's dream." (The Prophet, Kahlil Gibran, 1923)
A clip of the micro-city
When customers entered from the South Huangpi Road arcade, they originally had to reach the café through a common vestibule and public restrooms. We decided to remove the three glass doors and turn the vestibule into an ambiguous space, a porch echoing the colonnade of the indoor plaza. From there, we pushed open the doors and took a few steps up into the bar area of the café. The black bar area is the handle part of the "knife handle", and the service space takes up the main area. We turn the aisle into an exhibition and casual seating area. On one side of the door is a take-out waiting area made of green handmade bricks and a small gallery in collaboration with the Shanghai Historical Museum, where you will be surprised to see take-out coffee being handed out from a hidden frame.
At the end of the museum is a stainless-steel sliding door with a white colonnade behind it. The floor of the colonnade is elevated to level with the museum, so that the high windows would fit in the scale of a human being. From the colonnade, the steps lead people down to the white plaza. Looking back from the square, the black bar is nestled in the white colonnade, where people could have a seat to rest and drink while watching the comedy in the square. And the colonnade along the outer wall was filled with low sofas, a rewrite of my impressions from the hookah cafés of Istanbul. Sun shines through the smokes flowing in the colonnade. Being cozy, life is just like that.
Mapoly Coffee, from the colonnade into the museum with exhibition halls and then walk to the square with colonnade, is a fragment of the miniature city I envision. Scaling up this 'Piazza in a Room', it is then my ideal city – Shanghai.
"Nobody learns without getting it won."
Ornaments
My Shanghai is never minimalist. She needs some very restrained decoration, markers of memories and symbolism. The floor of the entrance gallery is inlaid in the middle with tiles from the stables that were found during the renovation. The horseshoe symbol commemorating the stables can also be seen on the arches of the colonnade in the black bar. The high siding, enamel floor tiles, parquet flooring and green handmade tiles in the black museum are shaping a Shanghai that is both real and unreal in its memory, which is dramatized by a stained-glass ceiling inspired by coffee cherries.
I covered the bar area with black wood and the entrance gallery and plaza with white stone. The flooring is all white stone parquet with grid line pop-ups. The stone corners, including the niches, are continuously fillet. You can see the ground niche at the entrance with candles, while the niche in sight, representing cave entrance, the green take-out area, the black bar and white monument behind it faintly visible. It's not very architectural, but decoration is never a sin, it's the very little bit of meaning we need to satisfy ourselves.
"Because we need a witness to our lives."
Shall we dance
I am a man facing a middle-aged crisis. But creating this café, where Yakusho Hiroshi or El Pacino could improvise a tango, I fulfilled my dream from my youth time. I leaned against the stairs, being a little tipsy with champagne, and the door on the stairs was actually a canvas for my thoughts to linger. The tango in the square by my good friends, dancers Zhou Jitian and Zhu Liqian, reminded me of the 90's, a time of possibilities and bravery.
Shall we dance?Well, I don't know how to dance, but I want to dance with you awkwardly and clumsily, and the ceiling on the monument will always be sunny, no matter if it is storming outside.
"All I want from you is another day."
Shanghai in my eyes
The city where Mapoly Coffee can showcase the alternating day and night lifestyle is a certain clip of Shanghai in my eyes. I had once lost faith in Shanghai and sighed because I was struggling in the hospital bed. But when I pushed open the heavy black doors, a familiar and brave Shanghai came crashing down on me. Well, Shanghai has been alive.
- Année
- 2022
- Statut du projet+
- Construit




























