AD ARCHITECTURE OFFICE, SHENZHEN
Project name: AD ARCHITECTURE office, Shenzhen
Area: 680 square meters
Location: Nanshan, Shenzhen, China
Design firm: AD ARCHITECTURE(http://www.arch-ad.com/)
Design firm email: office@arch-ad.com
Chief designer: Xie Peihe
Design team: AD ARCHITECTURE
Construction firm: Shenzhen Botao Construction Co., Ltd.
Lighting design consulting: Hesper Lighting Design (Guangzhou) Co., Ltd.
Main materials: handmade coating, carpet, stainless steel, glass, acrylic, pine wood panel
Start time: May 2021
Completion time: November 2021
Photography: Ouyang Yun
Video:https://youtu.be/jDr478iVywU
After the first Industrial Revolution, collective offices emerged for the first time in history to improve workers' productivity as well as manage them. In late 1800s and early 1900s, F. W. Taylor came up with his scientific management theory and since then efficiency was the most important priority regardless of order, class, supervision or the public interest. Featuring a closed and oppressive environment, such kind of surveillance-style offices still exist even today.
"The project is an exploration of future office, and a revolution in the current context. The concept of the future is a universal idea, while the present is full of romantic self-righteousness. I hope the instantaneous idea of the project can trigger stimulation and continually inspire new vision."
— Xie Peihe, Chief Designer
01/
Unintentional order
If the present is an illusion, the chief designer Xie Peihe hopes it's about power, ambiguity, temptation, mischief, romance, fashion, fun and mystery.
As conceiving its new office in Shenzhen, design practice AD ARCHITECTURE intended to create an otherworld in the moment to generate unique sensory experience in the space. The moment is only perfected with the participation of people and behaviors, which is an unintentional perfection. The unintentional is a kind of artificial order, and the nature of space keeps changing in line with the relationship between time and people. Such unknown changing state of space is what AD ARCHTECTURE has always been exploring in design practice.
02/
More than office
Familiarity is reassuring but less touching. For this project, AD ARCHITECTURE tried to rebel against rules and create a touching experience. Outside the office window are park oasis, lake, sea and remote mountains, which form a wonderful picture. The office also enjoys a panoramic view of Hongkong and Shenzhen Bay. The design team wanted to express the idea of men relying on nature in the city center, to let people become a part of nature. Resonance is love, which is what AD ARCHITECTURE calls warmth. The team always focuses on interaction between people, people and objects with an exploratory attitude.
03/
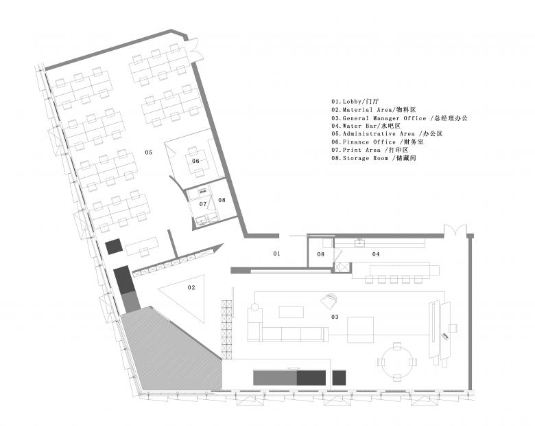
Intelligent multifunctional reception area
AD ARCHITECTURE abandoned the traditional meeting mode where people sit facing each other, but unified the meeting area and the reception area. Through smart lighting and stereo system, this integrated area can also be turned into a cinema or an entertainment area. This realizes maximum utilization of space, weakens its business atmosphere, and makes it more relaxing. Here, people are not opposite but in the same community, which reveals "warmth" in the cold office building.
The chief designer's working and reading desk is unexpectedly placed in the reception area. There is no absolute division among office, conference, reception and leisure functions, embodying the concept of freedom and sharing.
As night falls, the city and the cold office building are quite down. AD ARCHITECTURE wanted to alter such normality through design. Flame-like red lighting bursts out of the black box, bringing users to another dimension awash with seduction, ambiguity and illusion. It evokes rich emotions, and brings more surprises rather than fear.
04/
Self and openness
Material display area is often considered the most cluttered and private space in corporate office. This stereotype stems from an unease mindset that desires to hide the imperfection. However, with a confident attitude, AD ARCHITECTURE deliberately set the material display area at the center of the space, which is near the entrance. The central position of this area makes work more efficient. It shows aesthetic expressions, and reflects the design team's challenge against uneasiness.
The office area breaks through the traditional working environment composed of several separate compartments, but applies an open layout instead. The working areas for different departments are designated but not separated, which improves communication efficiency and creates a more equal and harmonious working atmosphere. Considering that designers' work is done mostly sitting, AD ARCHITECTURE has equipped each colleague with an HAG office chair imported from Norway. The ergonomic chair can adjust mechanical support according to users' sitting postures. Colleagues' comfort and health are a part of the company's hidden asset. AD ARCHITECTURE intends to emphasize warmth and humanity through small details.
Reception area, material display area and office area constitute the AD ARCHTECTURE office in the simplest manner. The twisting circulation route formed at the entrance and the relatively low-profile reception area create a private, mysterious spatial atmosphere, and reveal a hidden beauty.
05/
Darkness
Usually dark-toned offices are controversial. The dark hue of AD ARCHITECTURE office surprisingly draws the sight line to the beautiful scenery outside, hence enhancing the employees' interaction with nature. The simple material scheme and travertine-texture Italian coatings reveal a sense of weight of the space. FINETT carpet from German features comfort, excellent sound absorption performance and fine textures. The combination of stainless steel and lighting enhances the sense of technology of the space and meanwhile enriching spatial scenes.
The design of this office is an impulsive but intentional attempt. AD ARCHITECTURE boldly explored the possible forms of future offices while also incorporating humanity to the workplace. The project reveals minimalist, artistic design languages, whilst integrating Eastern and Western ideas.
Here, the mind resonates with the space, and encounters good things.
06/
Retro style and fashion
Furnishings from various international brands are brought into the office. The TA001T Dream Chair designed by Tadao Ando, furniture pieces from Cassina, Driade and HAG, and Fragment floor lamp designed by SINGCHAN, reveal the collision between retro style and fashion and embody the pursuit of design quality.
- Anno
- 2021
- Stato del progetto
- Costruito









































