From Border Line to Border Less
Project Location
Naples, Italy
Topic
Urban Regeneration Building, Public space
Program
Government & Civic Prison
Inclusion processes for Secondigliano prison
Nowadays, a prison is seen as a container for evil and crime to be placed as far away as possible from the cities, like a box located and forgotten in a basement. The goal of this project is to suggest a model that guarantees special and quality time leading to social reintegration opportunities and cultural reinforcement.
Secondigliano prison is located at the margin of two districts of Naples, Secondigliano and Scampia, surrounded by a desolated area that emphasises its eviction from the urban space and community life. This alienation can be found inside the walls too, with huge, dismissed spaces and no areas dedicated to daily activities or social relations. Furthermore, the moment an individual becomes an inmate, their whole world stays outside. This expropriation is not only related to material goods, but also to personal identity, privacy, every type of relationship and sexuality. Hence, they’re left alone, deprived and isolated in a blank space that offer them no possibilities of personal or social development.
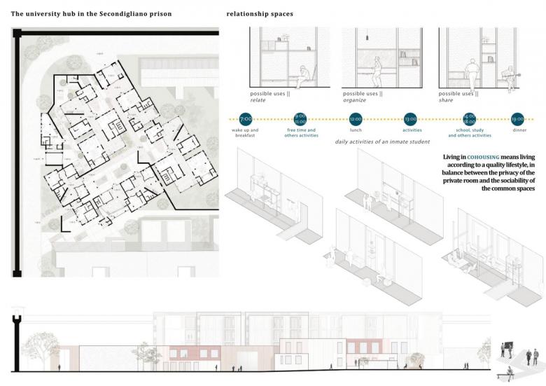
The first goal of this project is designing buffer areas, that includes different uses of the open spaces, with areas dedicated to agriculture, waste recycling (compost), vegetation and water recycling through phytodepuration. In addition to improving climatic comfort and eco sustainability, this extensive project increases the daily duties of the inmates, giving them the possibility of being self-sufficient by learning, working and being responsible for these spaces. These buffer areas will be also used for family gatherings. The Encounters Garden recalls the communal dimension of a park, allowing the possibility to meet, play and spend quality time together. The Affectivity Houses offer a more private environment, with a living space for the family and a bedroom to guarantee the right to sexuality and intimacy. The goal is to hold interaction and relationship activities in enclosed volumes that still allow for the permeability of the outdoor space, to distance, physically and perceptually, the penitentiary, especially for children. In line with the rehabilitation purpose, the project also includes a university hub for the inmates, inspired to the concept of cohousing. The building holds all public and private functions in spaces that allow possibilities of relationship and connection towards the external squares. The ground floor is dedicated to the public sphere, with areas for worship or physical activities and the classrooms. The upper floors are reserved for the private sphere, with spaces for family gatherings, living units and study rooms. Corridors become opportunities for socializing and meeting using wooden furniture with metal frames that take on different configurations and offer different possibilities for use. This research aims at defining a project methodology for detention facilities as systems composed by common areas, for collective and cultural activities, and private areas for the reappropriation of privacy and personal identity. In this way, the penitentiary will be transformed from a space of isolation to a space of rehabilitation.
- Stato del progetto
- Progetto






