Swissnex
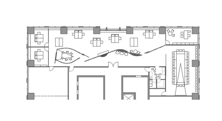
Swissnex Shanghai is Switzerland's outpost for science, technology and culture in China. A large and flexible functional space is divided by a curved screen into 2 areas. The public area provides the workshops, conferences, exhibitions and reception spaces. Behind the screen is a friendly working space with a high flexibility for 7 to 14 workers. The screen flowing between ‘public’ and ‘private’ is the sensitive element plugged into the interior. The special attraction of this screen is its visual animation while you pass through.
Constructed Area
700sqm
Client
Swissnex Shanghai
- Anno
- 2007
- Stato del progetto
- Costruito



