Erweiterung Schulanlage Luchswiesen
Erweiterung Schulanlage Luchswiesen
in Zusammenarbeit mit LYRA Lara Yves Reinacher Architekten, Raphael Kräutler BK Architekten, Fahrni Landschaftsarchitekten, WaltGalmarini AG, Dunedin Arts Illustrationen
3.Platz / 3. Preis im offenen Projektwettbewerb, 2022
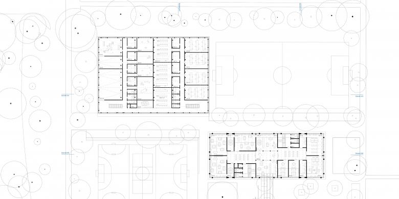
Der von grossen Bäumen gefasste Schulcampus Luchswiesen besteht aus einem lockeren Ensemble mit vier Gebäuden. Zwei Neubauten, das Schulgebäude und die Sporthalle mit dem Ateliergeschoss, ergänzen die bestehenden Trakte A und B und bilden eine neue campusartige Struktur. Jedes der vier Gebäude verfügt über einen eigenen unverwechselbaren Charakter mit eigenen spezifischen Qualitäten, die FAB FOUR. Die städtebauliche Setzung der Gebäude schafft dabei eine Abfolge von grosszügigen Freiräumen, welche sich nahtlos in die Struktur der fliessenden und durchgrünten Aussenräume im Sinne der Steinerschen Gartenstadt einfügen.
Der neue Sportpavillon steht im Baumgürtel der Glattwiesenstrasse. Er beinhaltet neben der Sporthalle auch die Räume für das Gestalten und Musizieren. Durch seine Doppelnutzung durch Schule und Öffentlichkeit bildet er ein Scharnier zwischen Schulareal und Quartier. Als abgelöster Baukörper kann er komplett unabhängig vom Schulhaus betrieben werden und steht der Nachbarschaft abends, in den Ferien und auch am Wochenende zur Verfügung. Das Obergeschoss ist ein grosses Ateliergeschoss analog einer grossen Werkstatt, welches auch ausserhalb der Schulzeiten vom Quartier genutzt werden kann.
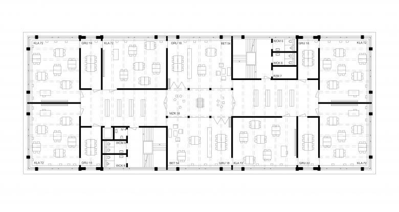
Das Erdgeschoss des Schulhauses steht der gesamten Anlage zur Verfügung. Eine grosse, zentrale Halle bietet sich als Treffpunkt für alle Schüler und Mitarbeiter an. Der vielseitig nutzbare informelle Raum kann für Arbeitszonen, Aufenthalts- und Betreuungsangebot, Veranstaltungen und Ausstellungen genutzt werden. Der allseitig gedeckte Vorbereich bildet einen attraktiven vor Witterung geschützter Aussenraum. Die Obergeschosse sind in je zwei Einheiten pro Geschoss in Clustern organisiert. Die Betreuungsflächen in der Mitte als offener unterteilbarer Raum bilden das Herzstück, welche nach belieben zoniert oder zusammengeschaltet werden können.
- Anno
- 2022
- Stato del progetto
- Progetto









