Arbeiten im Grünen

Schwansburg 8, Buxtehude
Blick von der Hansestraße
Visualizzazione © bloomimages GmbH

Neubau einer Büro-/Geschäftsstelle in Buxtehude

Die neue Firmenzentrale für ein ortsansässiges Immobilienunternehmen liegt eingebettet in ein naturbelassenes Grundstück unmittelbar an der Hansestraße vis-a-vis der Buxtehuder Altstadt.

Ein dichter Gehölzmantel entlang des historischen Schiffergraben schirmt das Baugrundstück von der umgebenden kleinteiligen Wohnbebauung ab.
Der Charakter der natürlichen Grünfläche ist prägend für den Entwurf des Bürohauses. Das Gebäude wird zum „Haus auf der Lichtung“, eingebettet in einen Naturraum mit Waldcharakter.

Der Entwurf präsentiert sich als klares Volumen, dunkelgrün glasierter Ziegel, der den atmosphärischen Reichtum der umgebenen Natur widerspiegelt, verschafft dem Gebäude die Wirkung eines markanten Solitärs. Gleichzeitig brechen die großzügigen Fensterflächen mit filigranen Fensterprofilen die Homogenität und geben dem Gebäude Leichtigkeit und Transluzenz. Als Grundform einem abgewinkelten Y ähnlich, formuliert das Gebäudevolumen eine Willkommens-Geste auf der Eingangsseite, während im Gebäude eine Blickachse auf den Kirchturm der St. Petri Kirche aufgebaut wird. Weiche Konturen mit abgerundeten Ecken verleihen dem Gebäude Bewegung und Dynamik.

Die Erschließung erfolgt, von der Schwansburg kommend, über eine Brücke die den Schiffergraben überspannt. Der anschließende einladende Vorplatz als Entrée wird mit altem Basaltstein gepflastert und bietet Sitzgelegenheiten sowie Fahrradstellplätze.

Der Topografie des Grundstücks folgend wird die Eingangsebene als Splitlevel ausgebildet, mit luftige Räumhöhen im Foyer und Besprechungsbereich.
Eine einladende Atmosphäre begegnet dem Besucher bereits im Empfangsbereich. Erreicht wird dies durch den Einsatz weniger, wertiger Materialien wie naturbelassene geölte Eiche, geschliffener grün-grauer Anröchter Sandstein, in Verbindung mit warm gedämpften Weiss der Wände und einem durchdachten Beleuchtungskonzept. Während die äußere Hülle mit glasiertem Ziegel eine glänzende Oberfläche erhält werden im Innenbereich ausschließlich Materialien mit matten Oberflächen eingesetzt.

Die schon durch den Baukörper herausgearbeiteten dynamischen Innenräume werden durch Lichtvouten im Deckenbereich ergänzt. Lichtdurchflutete Räume mit Blick ins Grüne und auf die Altstadt von Buxtehude sorgen für außergewöhnliche Arbeitsplätze. Durch eine flexible Raumzonierung ist die Aufteilung von Zellenbüros bis zum OpenSpace-Office umsetzbar.

Abgerundet werden die Büroflächen um ein Café mit Lounge für die Mitarbeiter, das im zweiten Obergeschoss liegend eine fast 100 qm große, sonnige Terrasse mitten in den Baumkronen bietet.

Die neue Firmenzentrale spiegelt mit ihrer Form und Materialität die Zurückhaltung gegenüber ihrer Umgebung wider. Gleichzeitig wird ein starkes architektonisches Zeichen gesetzt das individuelle Arbeitsplätze mit hoher Qualität beherbergt.

Kenndaten
LPH 1-9 (2019-2021)
1.461 qm BGF / 1103 qm MF-G

Lageplan
Disegno © kbnk
Haupteingang
Visualizzazione © bloomimages GmbH
Empfang
Visualizzazione © kbnk
Grundriss Erdgeschoss
Disegno © kbnk
Konferenz / Meeting
Visualizzazione © kbnk
Grundriss 1. OG
Disegno © kbnk
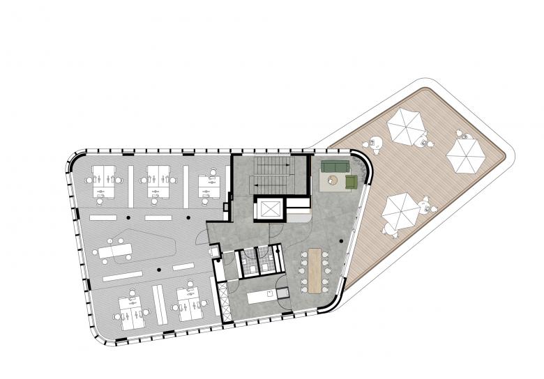
Disegno © kbnk
Café im 2. OG
Visualizzazione © kbnk
Grundriss 2. OG
Disegno © kbnk
Schnitt
Disegno © kbnk
Anno
2021
Stato del progetto
In costruzione
Freiraumplanung
Hahn Hertling von Hantelmann Landschaftsarchitekten GmbH, Hamburg
Statik und Brandschutz
KFP Ingenieure GmbH, Buxtehude
Haustechnik
energie&technik GmbH, Sittensen
Visualisierung
bloomimages GmbH

Altri progetti di kbnk ARCHITEKTEN GMBH 

Giselbertstraße
Buxtehude, Germania
LeNa Kroonhorst
Hamburg, Germania
Ipanema
Hamburg City-Nord, Germania
Leo-Leistikow-Quartier
Hamburg Uhlenhorst, Germania
53.32 ° N / 9.59 ° O
Hamburg, Germania