Sanierung Villa Büel

Winterthur
Foto © Michael Haug

Die Villa Büel ist ein Denkmalschutzobjekt von kantonaler Bedeutung

Foto © Michael Haug
Untergeschoss
Disegno © KilgaPopp
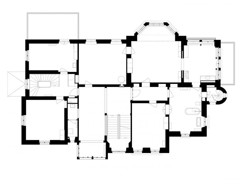
Erdgeschoss
Disegno © KilgaPopp
1. Obergeschoss
Disegno © KilgaPopp
Dachgeschoss
Disegno © KilgaPopp
Dachaufsicht
Disegno © KilgaPopp
Querschnitt
Disegno © KilgaPopp
Nordfassade
Disegno © KilgaPopp
Foto © Michael Haug
Foto © Michael Haug
Foto © Michael Haug
Foto © Michael Haug
Foto © Michael Haug
Foto © Michael Haug
Foto © Michael Haug
Foto © Michael Haug
Foto © Michael Haug
Foto © Michael Haug
Südfassade
Disegno © KilgaPopp
Anno
2016
Stato del progetto
Costruito
Cliente
Stadt Winterthur Immobilien

Altri progetti di KilgaPopp Architekten AG 

Stadthäuser
Winterthur
Wohnhaus Krokodil
Winterthur
Umbau und Erweiterung Halle 181
Winterthur
Neubau Wohnhaus Neumarkt 5
Winterthur
Neubau Wohnhaus mit Gewerbe am Bahnhof Töss
Winterthur