Blickpunkt Chammerholz
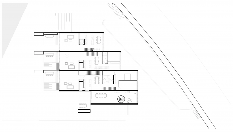
Angrenzend an die Natur anstelle einer ehemaligen Villa nimmt das Mehrfamilienhaus vier unterschiedlich grosse Wohnungen auf. Seine vertikale Holzverschalung verleiht ihm eine pavillonähnliche Ausstrahlung, wodurch es sich harmonisch in seine Umgebung einfügt. Die individuellen Eingänge und Garagen kommen auf einem Hof zusammen. Jede Wohnung ordnet sich um einen gedeckten sowie um einen offenen Lichthof an.
Auftraggeber:in
Baugesellschaft Chammerholz
Bauträger:in
Odinga Ventures AG, Volketswil
Architektur
moos. giuliani. herrmann. architekten.
Roger Moos, Christoph Schneider, Sara Kanese, Damaris Hermann
Bauleitung
moos. giuliani. herrmann. architekten.
Stephan Melcher
Statik
ibeg bauengineering gmbh, Wetzikon
Bauphysik
Herrmann Partner AG, Andelfingen
Landschaft
ryffel + ryffel Landschaftsarchitekten, Uster
Fotografie
Sabrina Scheja, Rebstein
Eckdaten
4 Wohneinheiten, GF SIA 416: 1735 m²
Bauzeit: 15 Monate
Bauvollendung: 2015
- Anno
- 2015
- Stato del progetto
- Costruito











