Rock Creek House

Foto © John Horner

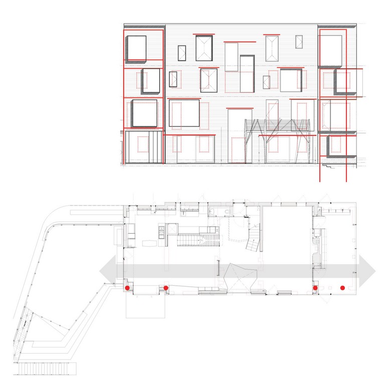
The Rock Creek House is an adaptive re-use project of a 1920’s brick structure that was originally composed of two floors, with a mechanical basement and attic. This adaptation leverages the robustness of the existing structure to capture the attic and basement to double the house’s size, while expanding its functions into the landscape. While the northern street façade remains relatively intact --formal, insular, and composed-- the southern exposure to Rock Creek is made more generous. By expanding the areas of glazing and establishing a more precise relationship between rooms and their respective apertures, a new architectural order is established on the south – more informal, open and in dialogue with nature.
The perimeter structural wall, composed of brick, is reorganized around a north-south bias to mark the axial transition of formal and closed spaces on the north, to the informal and exposed spaces of the south. In correspondence to this, internal structural framing runs east-west, connecting the brick party walls, while topped with a cladding of laminated plywood that serves the program of the house, running north-south in tandem with the orientation of the house. All elements are incorporated into these laminar striations: stairs, closets, seats, window frames, among other components. From a solid facade on the North to a transparent and glazed facade to the south, the tectonics of the house reinforces this transformation.
The most salient spatial intervention is the introduction of two multi-height spaces. The first connects the entry level down to the garden level, with a new living room that extends to the southern landscape. The second vertical space connects the entry up to the former attic, now a play loft capped by a skylight. With these two interventions the once stratified realms of storage, bedrooms, work areas, and living areas become seamlessly intertwined.

Front facade adaptation
Disegno © NADAAA
Stair section
Foto © NADAAA
Foto © John Horner
Foto © John Horner
Foto © John Horner
Foto © John Horner
Foto © John Horner
Foto © John Horner
Foto © John Horner
Foto © John Horner
Foto © John Horner
Foto © John Horner
Foto © John Horner
Foto © John Horner
Foto © John Horner
Foto © John Horner
Foto © John Horner
Foto © John Horner
Foto © John Horner
Foto © John Horner
Foto © John Horner
Foto © John Horner
Foto © John Horner
Foto © John Horner
Foto © John Horner
Foto © John Horner
Foto © John Horner
Foto © John Horner
Foto © John Horner
Rear facade and structural modification
Disegno © NADAAA
Foto © John Horner
Foto © John Horner
Foto © John Horner
Anno
2016
Stato del progetto
Costruito
Structural Engineer
SGH
Mechanical Engineer
Allied Consulting Engineering
Contractor
Abdo Development
Lighting
Hinson Design Group
AV and Integration
Bethesda Systems
Millwork
CW Keller Associates
Ladnscape Architect
Landworks Studio

Altri progetti di NADAAA 

Zhulang Huagai: A Figure for the Nantau Urban Village
Shenzhen, China
Beaver Country Day School
Chestnut Hill, USA
Gwangju Pavilion
Gwangju, South Korea
Banq Restaurant
South Boston, MA, USA
Aesop Fillmore Street
San Francisco, CA, USA