Schulhaus Dorf

Rehetobel, Svizzera

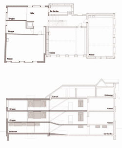
Alt- und Neubau werden unter gegenseitigem Respekt zusammengefügt. Von Aussen setzt sich der Anbau - trotz subtilen Gemeinsamkeiten wie Traufhöhe und Fenstergewände - selbstbewusst vom bestehenden Schulhaus ab. Im Innern jedoch verbinden sich Alt und Neu zu einer Einheit von unerwarteter Grosszügigkeit.

Das Pausenareal ist eingespannt zwischen einer hangseitigen Stützmauer und einer talseitigen Hecke. In diese sind organisch geformte Pavillons so eingefügt, dass sie nach einiger Zeit einwachsen werden. Der gedeckte Velounterstand ist in die Stützmauer integriert.

Anno
2005
Stato del progetto
Costruito
Cliente
Einwohnergemeinde Rehetobel AR
Aufgabe
Erweiterung / Umbau
Wettbewerb
2001, 1. Rang
Realisierung
2003-2005
Auszeichnung
Gutes Bauen Ostschweiz 2001-2005

Altri progetti di plan b architekten gmbh 

Wagenremise in Rorschach
Rorschach, Svizzera
Pauluskapelle Goldach
Goldach, Svizzera
Maestrani, Erweiterung Bürotrakt und Besucherbereich
Flawil, Svizzera
Gemeindehaus Rorschacherberg
Rorschacherberg, Svizzera
Neubau Kirche Oerlikon mit Wohnungen
Oerlikon, Svizzera