4 BLOCK

Vršovická, Prague, Czech Republic

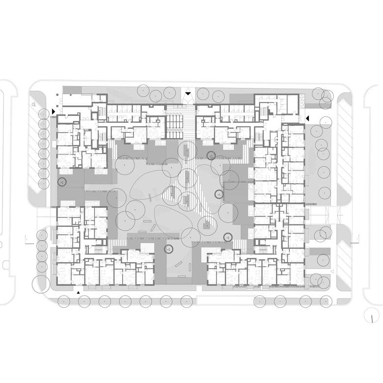
4BLOCK is located on the site, where was placed Tesla building before, next to Koh-i-nor. For this reason it is the last location with industrial objects in residential district Vršovice. The form come out from volume of local traditional blocks. At Vršovická is height of the building same as other buildings, perpendicularly height of building rises and it copies profile of terrain. In the northwest corner graduates building to building of Business Center Kodaňská. Between the building and the adjoining streets are the beds with extensive greenery planted with trees connected to the alley of the Vršovice boulevard. On the ground floor of the house, commercial units are placed, because of the revitalization of the streets - along the whole length of the building towards Vršovice boulevard and on the corner of the Altajská and the Kavkazská. In the courtyard on the 1st floor and the Kavkazská street there is a garden with a birch grove, a relaxation zone and a children's playground on the terrain. There is a sufficient supply of direct daylight and contact with the events in the neighborhood. We took care not to create a shady courtyard home as in a classical block building.The concept of planting the area is complemented by large roofed grass terraces.The entire building with garden modifications is designed to look like greenish greenery.

Architetti
Chmelař architekti
Anno
2017
Stato del progetto
Costruito

Progetti collegati 

  • Moos
    playze
  • Reiters Reserve Premium Suiten
    BEHF Architects
  • Erweiterung und Instandsetzung Hallenbad Altstetten
    MIYO Visualisierung
  • Neubau von fünf Einfamilienhäusern
    Bäumlin+John AG
  • The Forge in der 105 Sumner Street in London
    Kiefer Klimatechnik GmbH

Rivista 

Altri progetti di Chmelař architekti 

Cultural Center Pálenka
Shopping centre in Opava
Condominium Olomouc
Single house Velký Dřevíč II
Velký Dřevíč, Czech Republic
Church Square Broumov
Broumov, Czech Republic