A Promenade House– A Compacted Garden

Time: 2005–2008

Size: 1400 m2 model

Material: Concrete, red bricks

Model: plastic cardboard

A Promenade House- A Compacted Garden

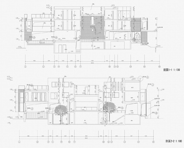
This project is a public club for a villa district in the suburban of Suzhou and will provides services as guest rooms, restaurant, exhibition space, party space, etc. Located on the east of small lake, this building is surrounded by high-raised apartment blocks on the rest sides. Therefore the openness to the landscape and closeness for the privacy is a challenge. How to solve this problem in the design? How to realize a garden in a compact house?

The scheme was developed from a net matrix, and then trimmed by the site boundary and integrated with the functions. The service spaces, such as corridors, stairs, rest rooms, etc., are deployed on the boundary of the building, and covered with porously red bricks, therefore could compose up a protective cover for the building. The interior is a matrix of blocks and gardens. Each block will have four sides enjoying a view into gardens, and four blocks will share each garden. A touring path deliberately goes though the courtyard and makes all the blocks and roof area be connected. The up and down promenade process will make the house, which was development from a rigid network, much more dynamic.

Architetti
TM Studio
Anno
2008

Progetti collegati 

  • Dreifachturnhalle Gipf Oberfrick
    WALTER BIELER AG
  • Gymnasium Schulstraße
    Kronaus Mitterer Architekten
  • GROHE Water Experience Center
    D’art Design Gruppe GmbH
  • Limmatquai 4
    Kästli Storen
  • Volksschule Erlaaer Schleife
    Kronaus Mitterer Architekten

Rivista 

Altri progetti di TM Studio 

TM Studio Office
Shanghai, China
Park Block Renovation
Taizhou, China
Ten Courtyard Houses
Suzhou, China
Dongs’ House Restaurant
Suzhou, China
Suquan Yuan
Suzhou, China