Arealentwicklung «Neuenegg – Denkmal»
Neuenegg, Svizzera
Studienauftrag 2021
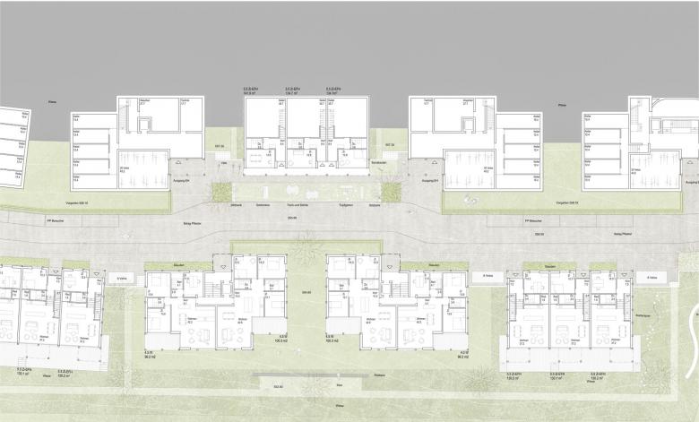
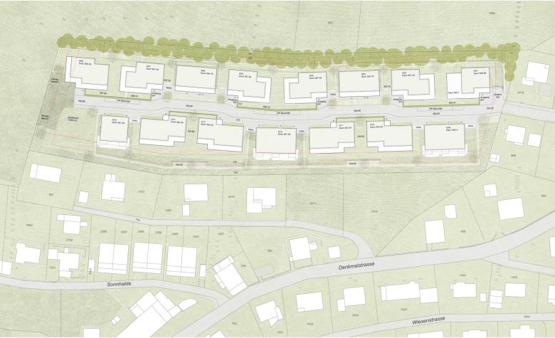
Die Parzelle bildet ein Plateau zwischen bebautem Südhang von Neuenegg und Denkmal. Die Wohnüberbauung präsentiert sich mit 15 Gebäuden in denen 68 Wohnungen untergebracht sind. Die Quartierstrasse ist nicht nur Erschliessungsstrasse, sondern dank hofartigen Raumdilatationen das Herz und Rückgrat des neuen Quartiers. Es gibt typologisch gesehen die Mehrfamilienhäuser oben und unter der Strasse und die Reihenhäuser oben und unter der Strasse. Die Gebäude folgen dem natürlichen Terrain und sind sozusagen in der Topografie verankert. Sie sind in der Höhe und in der Länge gestaffelt, damit sie sich in den quartiertypischen Gebäudemassstab integrieren können. Die Silhouette des Quartiers und die Silhouette der Hecke bilden gemeinsam den Dorfrandabschluss und den Übergang zur Landschaft.
- Architetti
- arb Architekten
- Anno
- 2021
- Stato del progetto
- In costruzione
- in Zusammenarbeit mit
- Stefano Ringgenberg Landschaftsarchitekt










