Arvind Mills Corporate Studio

Ahmedabad, India
Foto © Sachin Desai

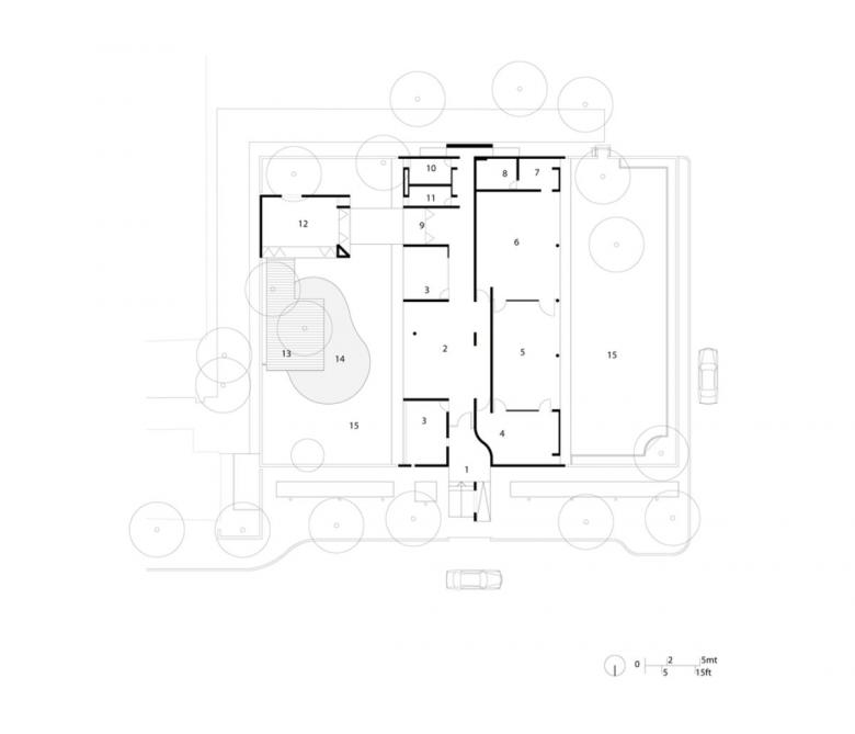
Built over an area of 520 sq.m., the studio is set within its mill compound at Ahmedabad and deals with India’s leading composite manufacturing of textiles.

The entrance abuts the road and the piano wall beckons the visitors in. The studio is an independent, rectangular, single storey structure located in a garden. Adjoining the main studio is a pavilion used primarily as an informal meeting area. The major consideration in the design was to blend the relationship of the interior and exterior, so as not to distinguish the office spaces and the landscaped garden but bring them together in a unity, complete and whole that is indivisible. The building is built in concrete and the fair-face surface also contributes greatly as a design feature.

Foto © Sachin Desai
Foto © Sachin Desai
Foto © Sachin Desai
Disegno © HCPDPM
Architetti
HCPDPM
Anno
2003
Stato del progetto
Costruito

Progetti collegati 

  • Moos
    playze
  • Reiters Reserve Premium Suiten
    BEHF Architects
  • Erweiterung und Instandsetzung Hallenbad Altstetten
    MIYO Visualisierung
  • Neubau von fünf Einfamilienhäusern
    Bäumlin+John AG
  • The Forge in der 105 Sumner Street in London
    Kiefer Klimatechnik GmbH

Rivista 

Altri progetti di HCPDPM 

Newman Hall
Ahmedabad, India
Student Housing, Institute for Plasma Research
Gandhinagar, Ongoing, India
Sabarmati Riverfront Development Project
Ahmedabad, Ongoing, India
Entrepreneurship Development Institute
Bhat, India
Ismet - Bimal Residence
Ahmedabad, India