Atelierhaus C.21
Vienna, Austria
Name of work in English
Atelierhaus C.21
Name of work in original language
Atelierhaus C.21
Placement
Shortlisted
Prize year
2022
Location
Vienna, Austria
Year completed
2021 (Year began 2019)
Authors
Werner Neuwirth (1964 Austria)
Collaborators
Architect: gaban büllingen Project management: robert hahn Landscape architect: isolde rajek
Program
Mixed use - Commercial & Offices
Labels
Compact, Media, Studio, Café, Office
Total area
3383 m2
Usable floor area
7375 m2
Client
Robert Hahn
Client Type
private
Map
LatLng: (48.1781358, 16.3887)
just space
How much space does a person need? An archaic and central cultural question. Human existence begins and ends in very tight spatial conditions, between them everyone needs space to live. Space exists, we are stuck in it and cannot escape it. In order to survive, we have to separate this elementary substance in multiple and various spaces, shape and order them, and then establish ourselves within them, activate them and continuously adapt them to changing conditions, longings and needs.
An unshaped, left-over plot with industrial zoning immediately adjacent to the main train station complex in Vienna, could not find an owner amongst the usual players for residential building or developers of commercial real estate. The project uses this gap as potential to move far beyond this rusted pattern of activity in order to conceive and realize a “useless” building type, to create “just space” as it were, without a pre-determined use, without a separation of life in behavioral phases or segments – simply space, space for anything, free of but not without value, nothing more.
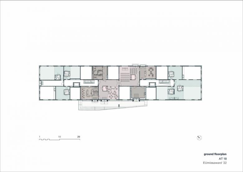
The Atelierhaus C21 therefore dissolves the typical limits of „work space“ and „living space“ and offers as a building type a neutral framework for various activities and visions of how to work or live or both, which the user shapes and forms into images of how to use the space on his or her own. As individual units from 40 to 120m² or combined into nearly unlimited space throughout the building, the ateliers create a spatial and technical place for freelancers, craftpersons, artists and small producers as well as for anyone, who seeks a open and flexible spatial structure for living. All three types, A, B and C, have a sanitary module as an elementary “core” with toilet, shower, wash basin and connections for a washing machine as well as for a small kitchen. The typical ceiling height is 2,70m and in the B and C types it is 5,70m in the main area. In addition to the 84 ateliers sold as condominiums, there are a roof terrace, spacious landscaped areas, and the foyer with salon on the ground floor free for open use by the building community. Operational support for the house community is provided by a small café and a gallery.
In terms of the urban spatial structure, the stoic building form is loosened up by the openings in the facade which reflect the interior spatial plan (Raumplan). The building form with its simple basic shape remains urban in both expression and dimension. The graceful design of the forecourt and the entrances on the ground floor create a complimentary dimension of intimacy. At the same time, the use of material remains on both the interior and exterior ordinary, simple and modest – raw and direct.
- Architetti
- werner neuwirth mag. architekt
- Anno
- 2021
- Stato del progetto
- Costruito
Progetti collegati
Rivista
-
La Costruzione della settimana
The Three-Body Problem: Trapped in a Wave Sandwich
Eduard Kögel, Scenic Architecture Office | 13.04.2026 -
-















