Attico sulla Villa
Palermo, Italia
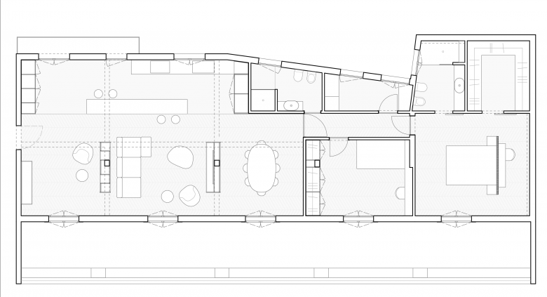
Situata all’ultimo piano di un palazzo degli anni 50’, dalle sue aperture si scorge il campanile della Chiesa di San Francesco di Paola e l’impianto settecentesco della Villa Filippina. La casa si sviluppa su una pianta rettangolare di 165 m², il passo viene scandito dagli elementi strutturali del fabbricato che costituiscono uno dei caratteri fondativi del nuovo progetto insieme al soffitto a falde alto sino a 5 metri, riportato alla luce durante le demolizioni. Il progetto si misura con gli elementi fondativi dell’immobile, organizzando lo spazio giorno in maniera fluida, diviso da “quinte” che dividono il grande living, rivestendo i pilastri alti 3,20 m, su cui poggiano le travi lasciate volutamente a facciavista. Le due quinte scandiscono lo spazio, si suddivide così l’ingresso dal salotto e dalla zona pranzo, la cucina “open”, viene invece definita dal cambio di pavimentazione, l’isola stretta e lunga collocata a filo con il cambio di pavimentazione la divide dal resto. La zona notte viene collocata in fondo alla casa, separata dal living da una porta a specchio che la nasconde completamente, qui trovano posto le due camere da letto, la padronale è dotata di un bagno “en suite” e di cabina armadi, le porte sono su disegno in legno di rovere e alte tre metri, viene disegnata inoltre una quinta in legno listellare ponendo il letto al centro della camera e filtrando alle sue spalle una zona riservata.















