Brasserie Sans Souci
Baslerstrasse 355, Allschwil, Svizzera
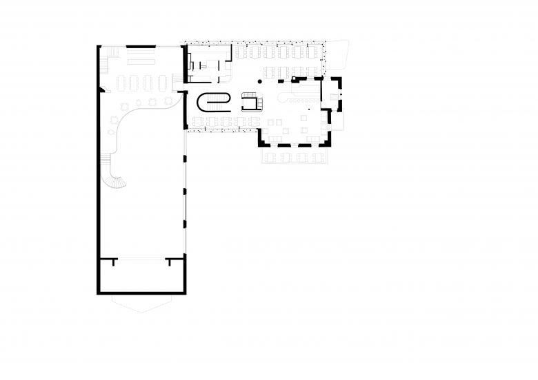
Im Zuge der Gesamtsanierung des Zic Zac in Allschwil galt es, die Erweiterung des Gastronomieangebots im Rahmen eines neuen Restaurants zu berücksichtigen.
Das Sans Souci nutzt teilweise die Infrastruktur des Bestandes, ist aber als eigenständiges und vom Zic Zac losgelöstes Restaurant konzipiert. Hierbei wird die eingeschossige, sich zwischen alter Villa und grossem Veranstaltungssaal aufspannende Dachfläche aktiviert. Im Zusammenspiel mit dem 1.Obergeschoss der alten Villa entsteht so auf einer Fläche von 300 m2 das Sans Souci - Brasserie & Grill.
Ohne das bestehende zu konkurrenzieren, soll das neue Restaurant trotzdem als eigenständiger Neubau in Erscheinung treten. Raumhohe Schiebefenster tragen dem Wunsch der Bauherrschaft Rechnung, ein helles und sich veränderbares Restaurant ins Leben zu rufen, welches in dieser Form für die Region Basel einmalig ist. Stützen in unterschiedlichem Durchmesser und auf unterschiedlichen Ebenen lassen die Fassade vielschichtig in Erscheinung treten. Gleichzeitig fungieren sie als Filter, welcher dem Innenbereich ein ausgewogenes Mass an Transparenz verleiht.
- Architetti
- Superdraft Studio Basel
- Anno
- 2016
- Stato del progetto
- Costruito














