Brunner Innovation Factory
Rheinau, Germania
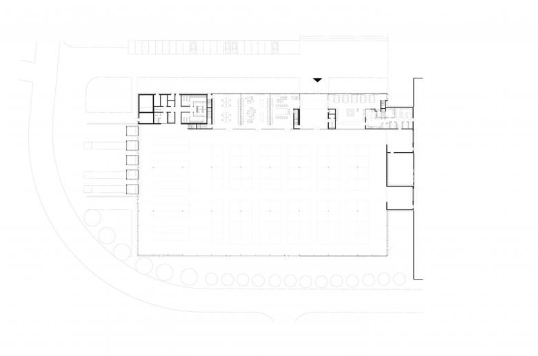
Die Erweiterung einer Produktionsstätte des Möbelherstellers Brunner in Rheinau/Baden integriert neben der Produktion, Versuchs- und Forschungswerkstätten, Büros, ein Bistro und Showrooms in eine kompakte Bauform. In dem zweigeschossigen Gebäudeteil findet die Endmontage der Möbel statt, in der rückwärtigen Halle befinden sich die Werkstatt und der Versand.
Die Fügung und die Materialität der Möbel wurden in der Architektur aufgegriffen und weithin sichtbar gemacht. Besonderes Augenmerk wurde hierbei auf das sichtbare Dachtragwerk gelegt, welches aus Holzbauteilen modular aufgebaut und leicht erweiterbar ist. Schon aus der Entfernung nimmt man es durch die gläserne Fassade hindurch wahr. Zudem ist es geprägt von den markanten, sich wiederholenden Knotenpunkten der Zangenkonstruktion. Die Effizienz dieser Konstruktion zeigt sich in der leichten und filigranen Anmutung. Quadratische Lichtkuppeln dienen der natürlichen Belichtung.
Eine angenehme Arbeitsatmosphäre und gleichwertige Arbeitsplatzqualitäten prägen den Entwurf. In die Halle sind entlang der gesamten transparenten Fassade zusätzliche Ebenen eingestellt worden, die durch eine Galerie miteinander verbunden sind. Sie werden für ein Bistro, die Büros sowie Forschung und Entwicklung genutzt.
Die matt reflektierende Metallfassade in Leichtbauweise gibt dem Montage- und Versandbereich ein industrielles Ambiente. Das hochwertige Material spiegelt die grüne Umgebung wider und bildet eine Ergänzung zum warmen Holzton im Inneren. Das Brunner Hybridgebäude dient als Schaufenster der Produktion. Mit dem Neubau öffnet sich das Unternehmen und gewährt seinen Gästen Einblicke in die Herstellung.
- Architetti
- HENN
- Anno
- 2018
- Stato del progetto
- Costruito
- Cliente
- Brunner GmbH
- Fläche BGF
- 7 477 m²
- Tragwerksplannung
- Schlaich bergermann partner
- MEP
- b.i.g. bechtold
- Bauphysik
- Müller-BBM
- Brandschutz
- hhpberlin
- Landschaftsarchitektur
- Rainer Schmidt Landschaftsarchiteken



















