Cuatrecasas Lawyers Headquarters

Almagro, 9, Madrid, Spain
Foto © Jordi Miralles

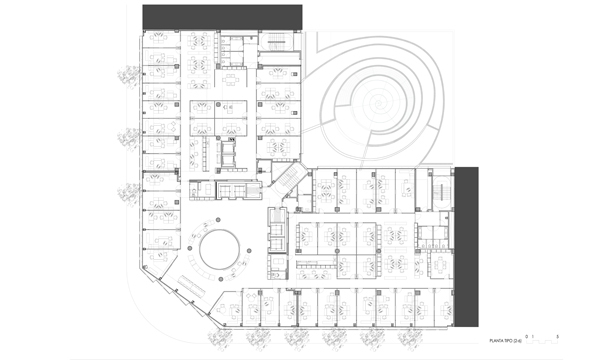
Rehabilitation office building for the new headquarters of the firm Cuatrecasas in Madrid in collaboration with Architects Barbarín Ruiz. Complete refurbishment of a building located in the center of Madrid, preserving its urban character. The facade is projected with a ribbed aluminum skin that protects from the sun and the views. Central courtyard is recovered as core communications and natural light conductor. Neutral materials are used and functional, it makes maximum use of natural light from façade and extending to the inner courtyard and all shipments to be treated with clear glass screens, this gives great comfort not only to the working areas but also the internal circulation spaces between plants.

Foto © Jordi Miralles
Foto © Jordi Miralles
Foto © Jordi Miralles
Foto © Jordi Miralles
Foto © Jordi Miralles
Foto © Jordi Miralles
Foto © Jordi Miralles
Architetti
GCA Architects
Anno
2013
Stato del progetto
Costruito

Progetti collegati 

  • Gymnasium Schulstraße
    Kronaus Mitterer Architekten
  • GROHE Water Experience Center
    D’art Design Gruppe GmbH
  • Limmatquai 4
    Kästli Storen
  • Volksschule Erlaaer Schleife
    Kronaus Mitterer Architekten
  • Ortsdurchfahrt Domat/Ems
    Luminum GmbH

Rivista 

Altri progetti di GCA Architects 

Qian Jiang Century City Office building
Hangzhou, China
The Mirror Hotel
Barcelona, Spain
Single Family House
Barcelona, Spain
Pronovias New York Showroom
New York, USA
Torre Puig, Barcelona
Hospitalet de Llobregat, Barcelona, Spain