Experimental Center for the Audiovisual Production "Magical"

Plaça Exèrcit, Lleida, Lleida, Spain
Foto © Jordi V. Pou


The new Experimental Center for Audiovisual Production is located on an occupied zone by the old infantry quarters of the actual Scientific and Technological Park of the city of Lleida. This infrastructure starts with the creation of MAGICAL, a complex with equipment and services for the creation of audiovisual contents allocated to various fields and market strategies.


 


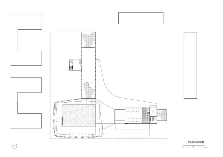
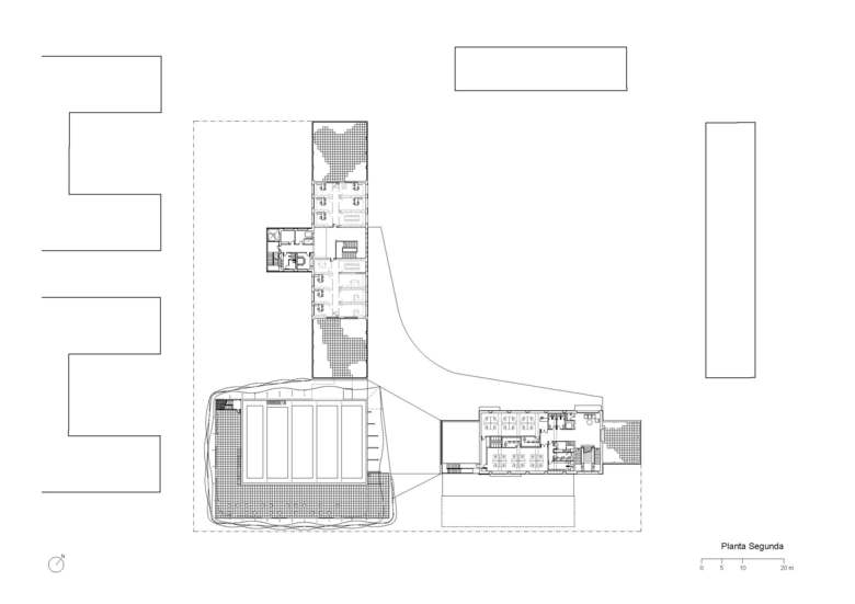
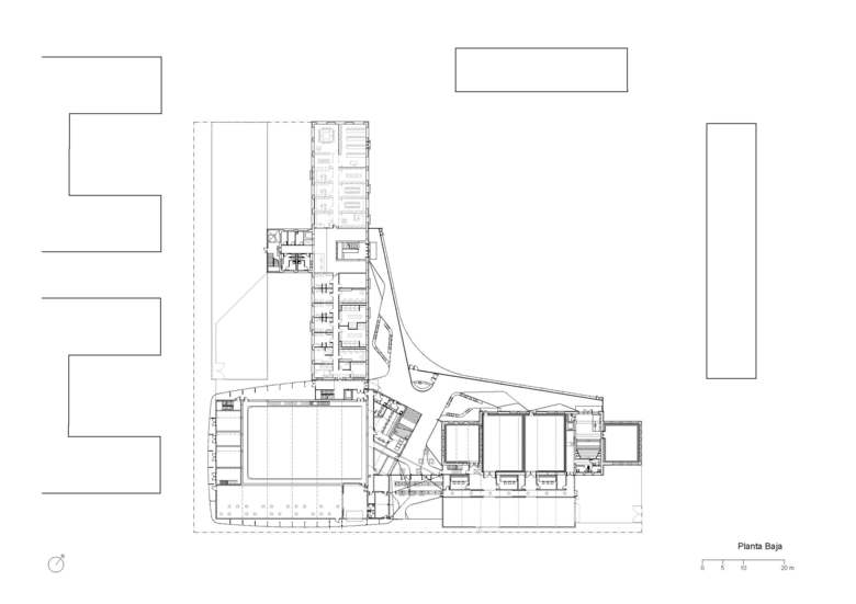
This project gives a new use to the existing buildings that form the old parade courtyard. In order to complete the functions of the centre, a third new volume has been constructed. It hosts a filming studio which is placed in the southern angle of the square and is oriented towards south. A stretched textile forms the envelope that covers this container and it extends evoking the fog that embraces and connect the three buildings. The access is made on the concave part of the façade. 


 


Under this textile element there is an open-plan space that works as a reception, waiting area, cafeteria, etc. and which is oriented towards the plain’s landscape. The public access to the studio is made through the control volume’s attic.


 


The textile technology used in the building, as opposed to the massivity of the historical edifications, permits to guess the huge possibilities of this new construction material. 


 

Foto © Jordi V. Pou
Foto © Jordi V. Pou
Foto © Jordi V. Pou
Foto © Jordi V. Pou
Foto © Jordi V. Pou
Disegno © Picharchitects
Disegno © Picharchitects
Disegno © Picharchitects
Disegno © Picharchitects
Architetti
picharchitects
Anno
2012
Stato del progetto
Costruito

Progetti collegati 

  • Gymnasium Schulstraße
    Kronaus Mitterer Architekten
  • GROHE Water Experience Center
    D’art Design Gruppe GmbH
  • Limmatquai 4
    Kästli Storen
  • Volksschule Erlaaer Schleife
    Kronaus Mitterer Architekten
  • Ortsdurchfahrt Domat/Ems
    Luminum GmbH

Rivista 

Altri progetti di picharchitects 

Community Center San Bernabé
Monterrey, Mexico
“Paideia" Special School
Barcelona, Spain
Teresianas School Extension
Barcelona, Spain
Scientific Technological Agroalimentary Park "PCiTAL Gardeny"
Lleida, Spain
Multifunctional building "Fondo"
Santa Coloma de Gramenet, Spain