Floods - temporary exhibition in Bergamo
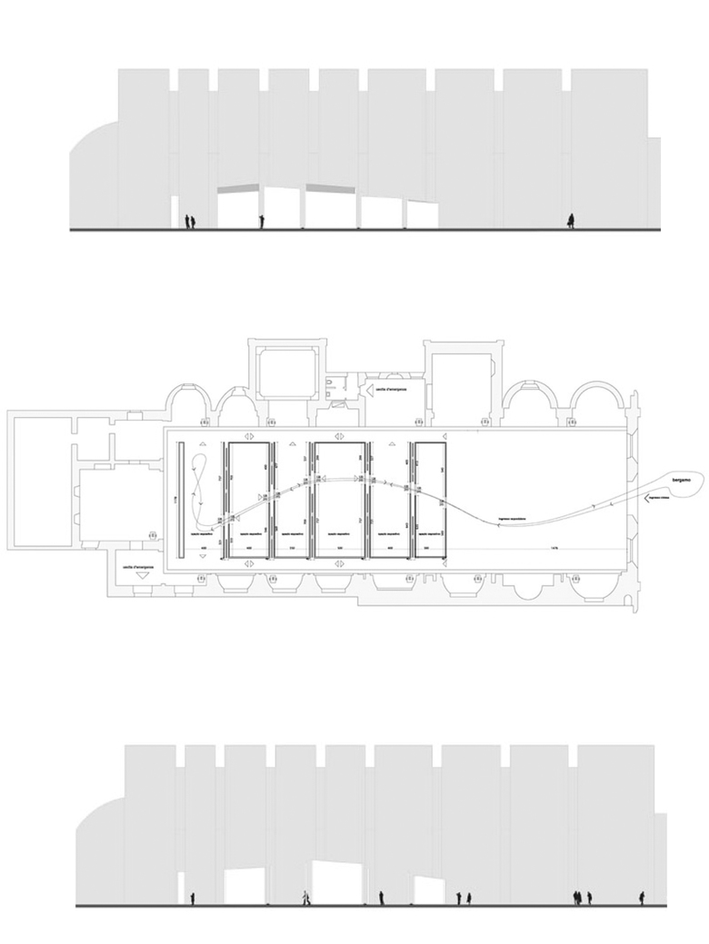
The “FLOODS” contemporary art exhibition, set up in the church of Sant’Agostino in Bergamo in March 2007, explores the theme of the flood, contamination of the physical and mental spaces, linked to everyday experience. Ten international artists have been invited to offer personal interpretations on the subject, united by a common denominator – water. The project is conceived as a wave marked by the building’s historical structure, that floods the church and moves between the liturgical space and the space of each individual installation.
- Architetti
- Laboratorio Permanente
- Anno
- 2007
- Stato del progetto
- Costruito
- Cliente
- Private
- Team
- Nicola Russi, Maria Chiara Piraccin
- Structural Engineer
- Eng. Pietro Boerio
- MEP
- STII Studio Tecnico Ingegneria Impiantistica










