Garden Quarters
Moscow, Russia
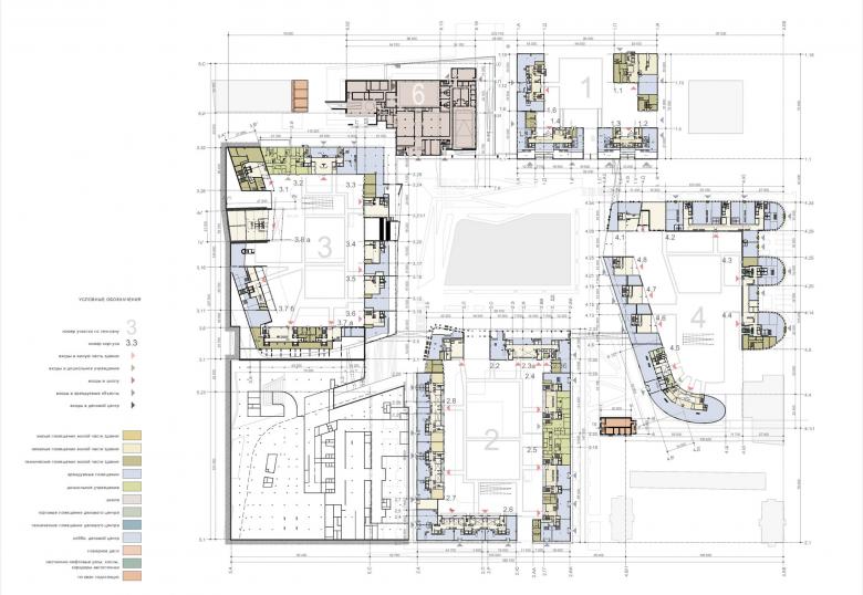
‘Garden quarters’ residential complex
- Architetti
- Sergey Skuratov Architects
- Anno
- 2020
- Stato del progetto
- Costruito
- Cliente
- M-development - CJSC
- General designer
- 'Sergey Skuratov Architects' ltf
- General contractor
- ‘Dywidag’ ltd
- Subcontractors
- ‘Metrostroy-Development’, ‘AM Grupp’
- Authors
- S. Skuratov (lead author), A. Panev (chief architect); 1 quarter: N. Asadov, S. Bezverkhiy, I. Golubev, I. Ilyin, M. Kiryanova,
- Individual houses
- 1 quarter: ‘Bureau 500’, architect M. Kurennoy (buld. 1.1, 1.6) | 2 quarter: TPO ‘Reserve’, architect V. Plotkin (buld. 2.5, 2.6
- Other houses
- (1.2, 1.3, 1.4, 1.5, 2.1, 2.2, 2.3, 2.4, 3.1, 3.3, 3.4, 3.5, 3.6, 3.7, 3.8, 3.9, 4.1, 4.6, 4.7, 4.8), school, business center, a
- Project stages
- general design, urban planning, architectural concept, design code, architectural project, architectural design, architectural s
- Project
- 2006-2014
- Construction
- 2010-2020
- Total area
- 476 500 m²
- Site area
- 14 hectares
- Total overground area
- 266 600 m²
- Total underground area
- 209 900 m²
- Area of landscaping
- 6 hectares
- Number of car places in the underground parking
- 4 000
Progetti collegati
Rivista
-
La Costruzione della settimana
The Three-Body Problem: Trapped in a Wave Sandwich
Eduard Kögel, Scenic Architecture Office | 13.04.2026 -
-


















































