Gymnasium München Nord mit Eliteschule des Sports

München, Germania
Foto © Zooey Braun

Mit dem Neubau des Gymnasiums München Nord und der integrierten Eliteschule des Sports in München Milbertshofen, will die Stadt die gymnasiale Versorgung im Münchner Norden sicherstellen. Das vierzügige Gymnasium ist für circa 100 Lehrer und 1000 Schüler/innen ausgelegt, rund ein Viertel davon soll ab der achten Klasse sportlich gefördert werden. Die Nachwuchstalente trainieren in Jahrgangsteams für nationale und internationale Wettkämpfe und lernen gemeinsam.

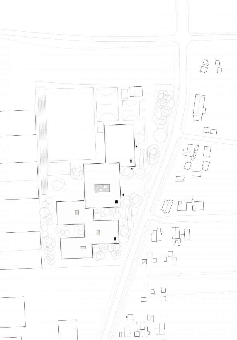
Der Entwurf organisiert Gebäude- und Freiflächen optimal auf dem vorgesehenen Baufeld. Das umfangreiche Raumprogramm wird auf fünf Baukörper nach dem Lernhauskonzept der Stadt München aufgeteilt: ein dreigeschossiges Haupthaus mit Aula, Mensa, Küche, Fachlehrsälen und Bibliothek, drei zweigeschossige Lernhäuser mit Klassen- und Teamräumen zur individuellen Förderung der Schüler/innen, sowie eine Dreifachsporthalle mit Zuschauertribüne und angrenzenden Freisportanlagen. Die Differenzierung in einzelne Baukörper unterstützt das übergeordnete Konzept. Das Gymnasium ist auf einen Ganztagesbetrieb ausgelegt.

Foto © Zooey Braun
Foto © Zooey Braun
Foto © Zooey Braun
Foto © Zooey Braun
Foto © Zooey Braun
Foto © Zooey Braun
Foto © Zooey Braun
Foto © Zooey Braun
Foto © Seeberger.Buss Fotografie
Foto © Zooey Braun
Foto © Seeberger.Buss Fotografie
Foto © Seeberger.Buss Fotografie
Foto © Zooey Braun
Foto © Zooey Braun
© Zooey Braun
© h4a Architekten
Architetti
h4a Architekten
Anno
2016
Stato del progetto
Costruito
Cliente
Landeshauptstadt München
BGF
18.335 qm
BRI
85.620 cbm
Wettbewerb
2012, 1. Preis

Progetti collegati 

  • Moos
    playze
  • Reiters Reserve Premium Suiten
    BEHF Architects
  • Erweiterung und Instandsetzung Hallenbad Altstetten
    MIYO Visualisierung
  • Neubau von fünf Einfamilienhäusern
    Bäumlin+John AG
  • The Forge in der 105 Sumner Street in London
    Kiefer Klimatechnik GmbH

Rivista 

Altri progetti di h4a Architekten 

Neubau Gesamtschule Hürth
Hürth, Germania
IT-Rathaus mit Rechenzentrum und Dienstleistungszentrum
München, Germania
Technologiezentrum MTZ
München, Germania
Grundschule Karlsfeld
Karlsfeld, Germania
Gesellschaft für Internationale Zusammenarbeit
Eschborn, Germania