Haus der Bayerischen Landkreise
Oskar-von-Miller-Ring, München, Germania
Bescheiden bis unscheinbar präsentierte sich das Büro-, Hotel- und Geschäftsgebäude aus den späten 50er Jahren in der Kardinal-Döpfner-Strasse 8 als Sitz des bayerischen Landkreistages in München. Die einzelnen Bauteile waren zwar alle noch intakt, entsprachen aber bei weitem nicht mehr den aktuellen Baustandards. Die innenräumliche Disposition des Gebäudes wies ebenso Mängel auf, welche durch gezielte konstruktive Eingriffe behoben wurden.
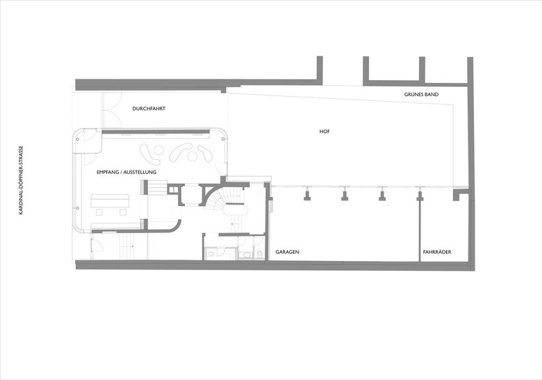
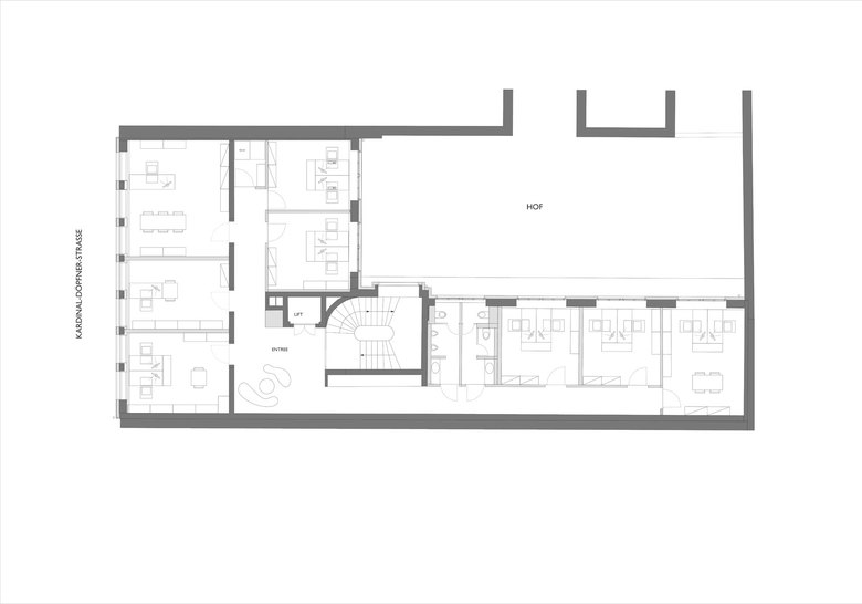
Der Friseurladen im Erdgeschoss wich einem repräsentativen Foyer- und Ausstellungsraum, der sich zum Hof hin öffnet und nun Ein- und Durchblicke erlaubt. Die restlichen Geschosse wurden in Büroflächen umgewandelt. In den Geschossebenen wurden die Liftvorzonen in die Büroeinheiten integriert. So entstand ein großzügiger Entree- und Wartebereich an der Nahtstelle vom Hauptgebäude zum Hofflügel.
Die neuen Materialien erhalten die Physiognomie des Hauses in ihrer Bescheidenheit und sind bestimmt von einer zurückhaltenden Noblesse. Auffälligstes neues Kennzeichen sind die Metallpassepartouts der Fenster. Eine goldbronzene Pulverbeschichtung stellt Bezüge zu den goldfarben eloxierten Fensterrahmen der 50er Jahre her.
Glänzend weiss glasierte Fliesen lassen durch ihre Handhandwerkliche Verlegung mit den daraus resultierenden feinen Unregelmäßigkeiten die Fassade in den Spiegelungen der Umgebung changieren.
Im Inneren des Hauses bestand die technisch-konstruktive Herausforderung darin die Bestandsdecken statisch, brandschutz- und schalltechnisch sowie akustisch wirksam zu sanieren ohne dabei deutlich an lichter Raumhöhe einzubüßen.
Planungszeit
2008-2010
Bauherr
Landkreisverband Bayern Körperschaft d. öffentl. Rechts
Planung
MORPHO-LOGIC
Michael Gebhard, Prof. Ingrid Burgstaller, M.Sc. Dipl.Ing. Architekten BDA Stadtplaner, Partnerschaftsgesellschaft
Mitarbeit: Christoph Pütz, Katharina Nicolait, Asja Boese, Ulrich Strebel
Projektpartner
Hirschhäuser Architekten, München
Auszeichnung
Architektouren 2011
Veröffentlichungen
DETAIL 5/2011, English Edition 4/2011 architektur.aktuell 6/2011
FAZ 26/06/2012
Büro Office Best of DETAIL 2013
Baukulturführer 52, 2010 Konservieren.Interpretieren.Transformieren BYAK, 2014
- Architetti
- MORPHO-LOGIC Architekten BDA Stadtplaner
- Anno
- 2010
- Stato del progetto
- Costruito














