Haus mit Garten
Mühlenstraße, Berlin, Germania
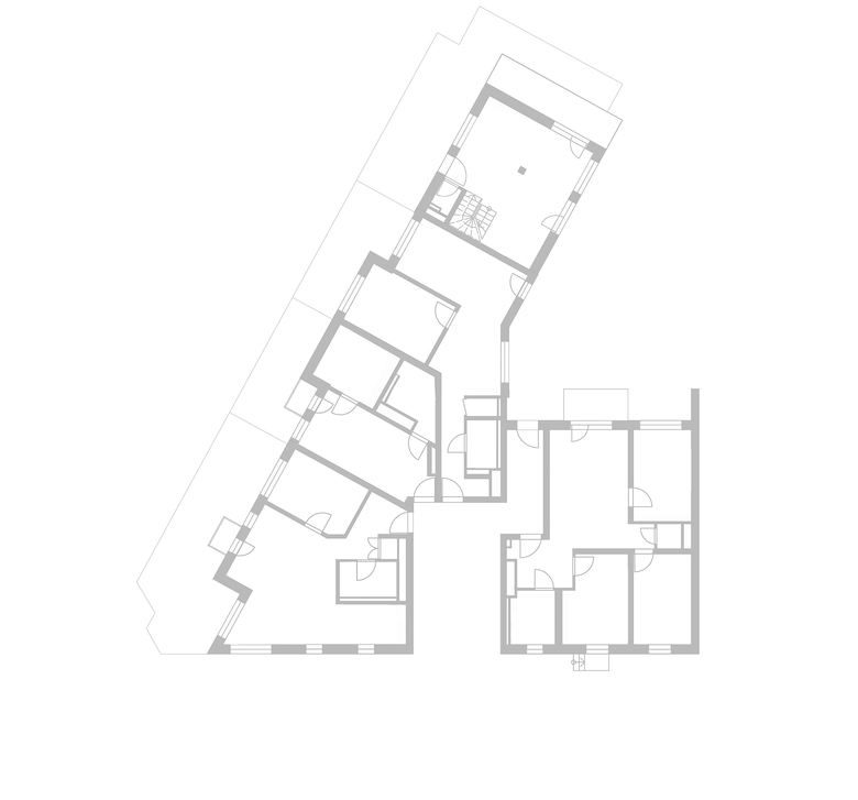
Berlin Pankow haben wir ein Wohngebäude mit 26 modernen Wohneinheiten realisiert. Wobei eine der Wohneinheiten als Town-House mit drei Geschossen und separatem Eingang konzipiert ist. Das Gebäude besetzt selbstbewusst ein Eckgrundstück. Es besteht neben dem dreistöckigem Town-House aus einem Gebäudeteil mit fünf Geschossen und einem Staffelgeschoss. Die Erdgeschosswohnungen verfügen zusätzlich über Vorgärten, wohin die höher gelegenen Wohneinheiten mit Balkonen, Erkern und Dachterrassen ausgestattet sind. Außerdem gibt es einen Gemeinschaftsgarten im Hof mit einer Spielplatzfläche von 104 m². Die Wohnungen sind für Paare oder Familien mit Kindern konzipiert und hochwertig ausgestattet. Von den 26 Einheiten sind acht Wohnungen und alle Geschosse barrierefrei ausgebildet. Abgesehen von der Gründung, den Kellerwänden und dem aussteifenden Treppenhauskern wird das Gebäude in vorgefertigter Holzbauweise errichtet.
- Architetti
- Sehw Architektur
- Anno
- 2019
- Stato del progetto
- Costruito
Progetti collegati
Rivista
-
La Costruzione della settimana
The Three-Body Problem: Trapped in a Wave Sandwich
Eduard Kögel, Scenic Architecture Office | 13.04.2026 -
-

















