world-architects.com
Profiles of Selected Architects
Profili
Progetti
Lavori
Eventi
Rivista
Temi
Rete
Login
Registrati
Italiano
Català
Deutsch
English
Español
Français
Italiano
Nederlands
Português
中文
日本語
Català
Deutsch
English
Español
Français
Italiano
Nederlands
Português
中文
日本語
World-Architects
Progetti
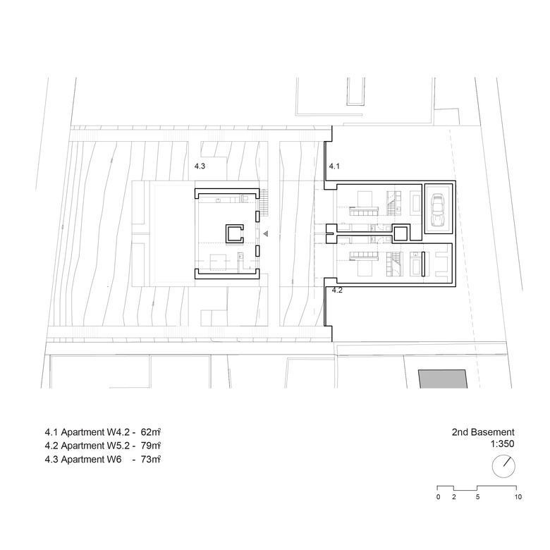
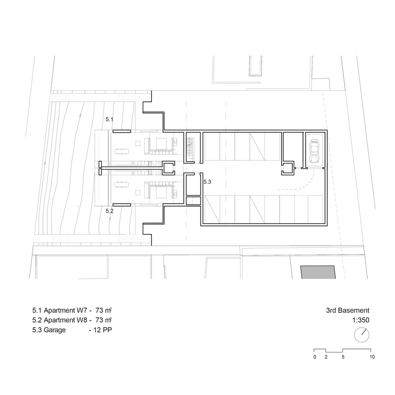
Housing Zollikon
Zürich, Svizzera
Case plurifamiliari
Condomini
Realizzazione sottotetti abitabili
Architetti
gus wüstemann architects AG
Anno
2017
Stato del progetto
Progetto
Progetti collegati
Gymnasium Schulstraße
Kronaus Mitterer Architekten
GROHE Water Experience Center
D’art Design Gruppe GmbH
Limmatquai 4
Kästli Storen
Volksschule Erlaaer Schleife
Kronaus Mitterer Architekten
Ortsdurchfahrt Domat/Ems
Luminum GmbH
Zeichner*in
marchwell
Bauleiter/in oder Hochbautechniker/in (m/w/d), 80–100%
schulzarchitektur gmbh
Projektarchitektin / Projektarchitekt ETH/FH 80%-100%
RUPRECHT ARCHITEKTEN
altri
Rivista
Headlines
Getty Center to Close Temporarily for 'Major Modernization Efforts'
John Hill
| 10.04.2026
Insight
Energy-Positive Construction
Elias Baumgarten
| 09.04.2026
Headlines
Kengo Kuma To Design New National Gallery Wing
John Hill
| 08.04.2026
Film
Architecture for People, Not for Architects
John Hill
| 08.04.2026
Found
2 x 2 = 4 Books from 2 Architects
John Hill
| 07.04.2026
Altri progetti di gus wüstemann architects AG
2nd prize, Competition, New Housing Complex with Tower Affoltern
Zürich - Affoltern, Svizzera
Invited Competition, New Housing Complex Zypressenstrasse, Winterthur
Winterthur
Heuteil Bad Ragaz
Bad Ragaz, Svizzera
Bar 0815
Zürich, Svizzera
Allschwil School
Allschwil, Svizzera