Hygiene Station for Cattlefield Village School
Cattlefield Village, Banka Town, Yongde, Lincang, China
Cattlefield Village Primary School is in a mountainous region of western Yunnan Province, China. The original school was built in 2010, in partnership with charity foundation, NGO’s and local government. It serves students from seven local villages, with the furthest village a 90-minute walk from the site.
Together with compulsory education, access to decent hygiene is a critical issue in this context. The existing toilet and shower block were in poor condition, and the shower block was unwelcoming and rarely used.
With charity partners providing programmes that teach the importance of hygiene, the design brief was to provide better facilities for the students to develop a washing habit, which can last throughout their lives. The architecture aims to be both sensitive to its origin and engaging to its users, and at the same time work effectively within the budget of a charitable project.
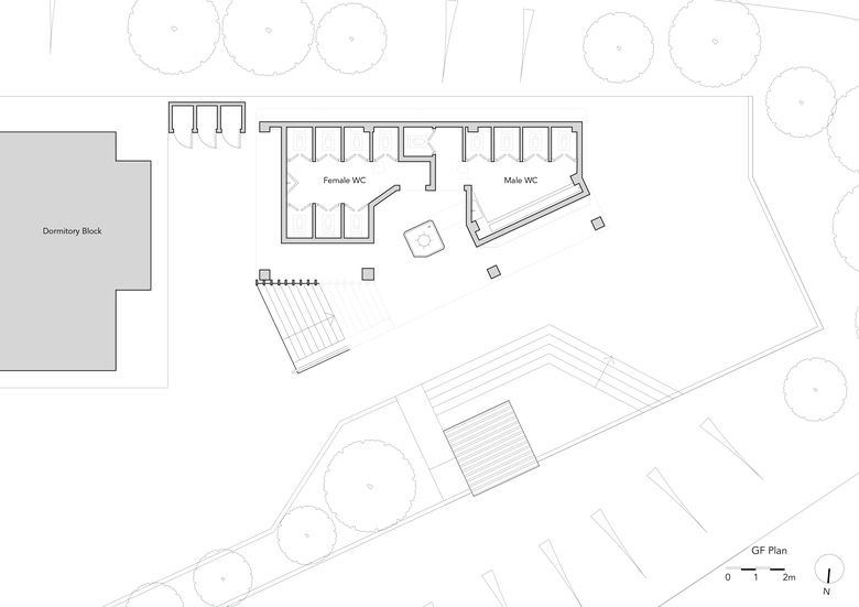
The overall form of the building is of the stacked shower and toilet programme, which helps to keeping the building away from the surrounding slopes. The upper structure is concealed by grey bricks, matching the texture of the village. The bricks were locally produced several years ago, and were left over from the construction of a house in a neighbouring village. On the ground floor, the walls are set back, revealing the structure, and are tiled to keep the walls clean from muddy hands.
The stacked form creates a sheltered overhang at ground level, with a freestanding washbasin as a focal point. Circulation flows around the basin, which is placed as a reminder for the students to wash their hands after using the toilet. Above the basin are two levels of skylights, providing natural lighting and connecting both levels to each other, and to the sky.
Approaching from the front playground, the cantilever roof and staircase are just visible, before revealing the rest of the building. The entrance to the upper floor is formed from a cut-out volume with the semi-open viewing platform overlooking the mountain scenery. Defined by a transitional brick screen, an open-tread staircase allows physical connection to the top floor, and visual connection to the lower washbasin.
Once inside the upper floor, there is a communal area with another basin for brushing teeth and face washing. Along the south facing windows, there are seats where the children can remove their shoes before entering the shower rooms on either side.
The regional subtropical climate is often described as ‘four seasons of spring’. Due to the altitude, there is a wide temperature range between day and night, particularly during winter. Taking this into consideration, the glazed, south-facing façade of the shower floor captures the daytime sun, warming the room for evening ablutions. Solar water panels preheat the hot water, and solar chimneys on the roof help to ventilate the toilets. With the stacked programme, the shower water is channelled through the urinal in the boy’s toilet, as both a supplementary flushing mechanism and for simple operation.
In addition to the local bricks, the main finishes are pebbledash and tiles, to protect the building exterior. On the interior, wet areas are tiled, using basic colours to differentiate the sexes. Chosen materials are readily available in the region and use methods familiar to the local contractors. As well as helping to keep the construction costs low, it also makes the building easier to maintain in the long-term.
- Architetti
- DOMAT
- Anno
- 2017
- Stato del progetto
- Costruito
- Cliente
- KPMG Foundation
- Team
- Maggie Ma, Mark Kingsley, Tanya Tsui, Adeline Chan
- Donor
- KPMG Foundation
- Supporting Donor
- Yongde County Education Bureau
- Local Design Institute
- Kunming Zhuozhu Architecture Design Co. Ltd.
- Contractor
- Yunnan Yong Xin Construction Company Limited


















