Immobilia Obergruber Büro

Amstetten, Austria

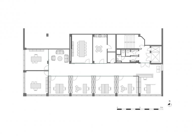
Zurückhaltung und Diskretion sind die Charakteristika, die die Arbeitsweise der Immobilienbranche ausmachen. destilat hat diese Qualitäten kurzerhand zum Designprinzip erhoben und für die Immobiliengruppe mit Sitz in Amstetten ein elegantes Interior entwickelt, das mit sanften Tönen und feinen Nuancen spielt. Auf den ersten Blick wirken die weitläufigen Büroräumlichkeiten unifarben – bei genauerem Hinsehen lassen sich unzählige Schattierungen, Stofflichkeiten und Strukturen in der Materialästhetik entdecken. Lamellierte Holz?-Wandpaneele, changierender Teppichboden, Einbaumöbel und auch das freistehende Mobiliar sind allesamt in Naturtönen gehalten.

Es ist die konsequente Wiederholung der Designelemente und Farbwerte sowie die klare Linienführung, die hier zur stringenten Corporate Architecture führt, in der alles präzise positioniert, nichts überladen und dennoch vom Feinsten ist. Markante Brandings entstehen nicht aus schrillen Designs sondern dann, wenn Markenwerte und Innenarchitektur passgenau übereinstimmen.

Architetti d'Interni
destilat
Anno
2020
Stato del progetto
Costruito

Progetti collegati 

  • Gymnasium Schulstraße
    Kronaus Mitterer Architekten
  • GROHE Water Experience Center
    D’art Design Gruppe GmbH
  • Limmatquai 4
    Kästli Storen
  • Volksschule Erlaaer Schleife
    Kronaus Mitterer Architekten
  • Ortsdurchfahrt Domat/Ems
    Luminum GmbH

Rivista 

Altri progetti di destilat 

Diagnosezentrum Institut Frühwald & Partner
Lounge T
Tirol, Austria
Cewe Fotobuch Office
Apartment H+M
Wien, Austria
The Ritz-Carlton Hotel Moskau
Moskau, Russia