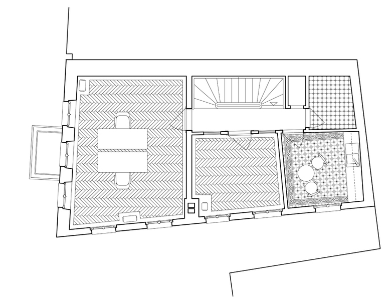
Instandsetzung „Haus zum Finken“
Zürich (ZH), Svizzera
- Architetti
- nik biedermann architekten gmbh
- Anno
- 2010
- Stato del progetto
- Costruito
- Programm
- Instandsetzung Wohn- und Bürogebäude
- Bauherrschaft
- Mathilde Schmidt Erben
- Architekten
- nik biedermann architekt
- Baurealisation
- roman singer architekt
- Rauminhalt SIA 416
- 1.350 m3
- Gebäudekosten BKP 1-9
- Fr. 450.000.-
- Direktauftrag
- 2010
- Ausführung
- 2010
Progetti collegati
Rivista
-
-
-
La Costruzione della settimana
The Three-Body Problem: Trapped in a Wave Sandwich
Eduard Kögel, Scenic Architecture Office | 13.04.2026












