関内の集合住宅
関内駅から徒歩3分の不老町の交差点に面する角地に計画された集合住宅。
この敷地には元々、横浜防火帯建築として知られる「不老町2丁目第一共同ビル」という宮内建築設計による小さな県公社共同ビルが建っていた。交差点を挟んで反対側には横浜文化会館のPFI再整備事業としてメインアリーナの工事が進められており、近くの教育文化センター跡地には関東学院大学のキャンパスも建設されていて、エリア全体が大きく様変わりしてきている。
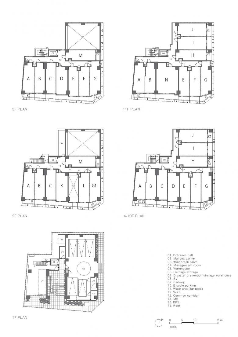
このプロジェクトでも既存が4階建てだったが、11階建ての集合住宅として計画され、22-25m2程度の小さめの面積の住戸が94戸集まる投資用の賃貸住宅として分譲される。アリーナの正面に位置することもあり、建物全体をファサードでアピールする事も求められた。
多くのマンションは各住戸からの効率の良い避難のため、隔て壁を蹴破って避難ハッチを共有できる様に住戸の前面に連続するバルコニーを設けている。しかしながらファサードの意匠としてはバルコニーを前提としなければならず、特に小さな住戸が並ぶこの集合住宅では、隔て壁が2.9m毎に必要になるため、ファサードで小さな住戸がことさらに強調されてしまう。
また、オーナーが一棟丸ごと所有する小規模な集合住宅であれば、バルコニーを無くしても、空調の室外機はまとめて屋上に設置できるが、分譲マンションの場合、空調機は個々の管理になるため、室外機置き場としてもバルコニーは必要である。香港の高層集合住宅のように、室外機を壁面の架台に設置する事も可能だが、やはりメンテナンス時の安全性を考えるとバルコニーが望ましい。
防火帯建築は下駄ばきアパートの構成で1Fに店舗が連続して道に沿っているケースが多かったせいか、ファサードの開口レイアウトも水平性が強調され、佇まいが落ち着いたものが多い。また交差点に建物が面している場合は隅切りされた面にも開口が連続して、水平性を保持した意匠が特徴的である。
このプロジェクトでは、各階のスラブを前面まで持ち出して水平ラインを強調する事で、水平性を強調して、近隣の防火帯建物に馴染ませる様にしている。また、バルコニーで小さな住戸ユニットが強調されず、ファサードを大きな面として表現しつつも、内部から感じる開放感を失わない様にするために、これらの水平スラブの間に縦糸の様に薄いコンクリートパネルを配置した。隔て壁部分には住戸区画を兼ねた奥行きの深いパネル、それ以外の部分にも様々な奥行きのパネルをランダムに設置する事で、戸境を目立たせないようにしつつ、ファサード全体をリズミカルな面として表現した。
角地のコーナー部分にある住戸の妻壁や、棟内にある機械式駐車場を囲む低層部の壁にも、バルコニー前面と同様のパネルを回すことで、ファサードを水平に連続させている。
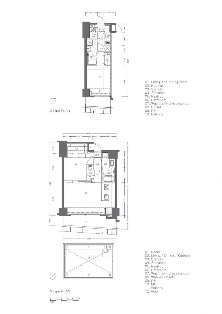
室内からバルコニー越しに外部を見ても目に入るパネルは奥行きの浅いもの数枚で、開放性を維持している。またその薄さは内部的なスケールを持ち、外に見える景色をフレーミングして繊細に際立たせている。
このコンクリートのパネルはHPCパネル(ハイブリッド・プレストレスト・コンクリートの略称)というもので、HPC沖縄で開発された超薄肉コンクリートパネルだ。厚さ40mm という薄さを実現出来たのは、鉄筋の代わりにカーボンファイバーを使用して、薄くても中が錆びる事を防ぎ、ワイヤーでストレスをかける事でひび割れが無いようにしているためである。スラブの上下にこのHPCパネルを金物で固定し、外壁、軒裏、手すり、室外機、給湯器など、スラブの端部とHPCパネル以外の外装の要素は全て黒くして、スラブとその間のパネルだけを強調した。
このファサードに正対すると、パネルはその薄さのために糸のように細い要素として見え、周りの空気を繊細に分節するような緊張感を醸し出している。角度をつけてファサードを見ると、様々な奥行きのパネルのコンクリートしての素材感も現れて、軽快さと荘厳さが同居したファサードとなっている。一日の中の日の光の当たり方でその表情は刻一刻と変化していく。
集合住宅は、中の構成をそのままファサードに表現される事が多いが、内部から求められる開放性を確保しながら、ファサードの面を形成するために、微細なパネルで内部の要素を包んだ。防火帯建築の様に通りに面する都市の構成要素としてのファサードの可能性に着目し、デザインの多様性も持ちながらも、既存の建物群と有機的な関係を持って、都市空間を形成できないかと考えた。
- Architetti
- 小山光/Key Operation Inc.
- Anno
- 2021
- Stato del progetto
- Costruito
- Cliente
- TOHSHIN PARTNERS Co. Ltd.
- 施工
- 藤木工務店
- 構造設計
- 構造設計工房デルタ
- 設備設計
- コモド設備計画
- HPCコンサルタント
- 細矢 仁
Progetti collegati
Rivista
-
La Costruzione della settimana
The Three-Body Problem: Trapped in a Wave Sandwich
Eduard Kögel, Scenic Architecture Office | 13.04.2026 -
-




















































