Kinder- und Jugendzentrum Pankratiusstraße
Pankratiusstraße 14-18, Darmstadt, Germania
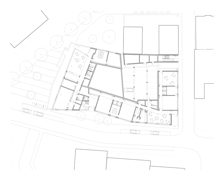
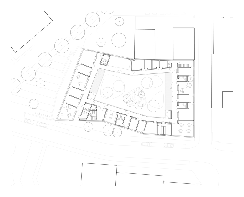
Mitten im Quartier ist das von allen Seiten gut erreichbare Grundstück für die Nutzung als Betreuungseinrichtung ideal gelegen. Der zweigeschossige Baukörper löst mit einer zunächst ungewöhnlichen Funktionsverteilung – Kindertagesstätte im Obergeschoss, Jugendzentrum und Schülerbetreuung im Erdgeschoss – die Anforderungen an Erschließung und Niedrigschwelligkeit. Durch die zurückhaltende Architektursprache fügt sich der Baukörper sehr gut in den heterogenen Kontext ein. Im Inneren wird eine bergende, heitere und freundliche Atmosphäre der Offenheit erzielt als Voraussetzung für entspanntes Heranwachsen und Lernen.
- Architetti
- Waechter + Waechter Architekten
- Anno
- 2019
- Stato del progetto
- In costruzione
- Cliente
- Wissenschaftsstadt Darmstadt
- Aufgabe
- Neubau eines Gebäudes mit Kindertagesstätte, Jugendzentrum und Schülerbetreuung
























