Kulturzentrum Uhingen
Uhingen, Germania
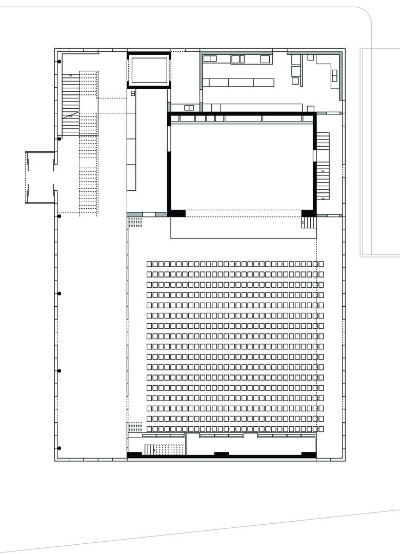
Die Planung des Gebäudes wurde maßgeblich durch die städtebauliche Idee geprägt ein Kulturzentrum - nicht wie üblich in der Fläche - sondern als Geschoßbau zu entwickeln. Dadurchverblieben im städtebaulichen Kontext der Stadtmitte von Uhingen wertvolle Flächen unbebaut die als Freibereiche genutzt, oder zu einem späteren Zeitpunkt überplant werden können. Die Umsetzung der Idee gestapelter Versammlungsräume die durch ein vertikales Foyer erschlossen werden, wirkte sich neben einer Nutzungsverteilung auf vier Ebenen zwangsläufig auch konstruktiv aus. So wurde der große Saal im Erdgeschoß durch eine weit gespannte Deckenkonstruktion mit drei Unterzügen überbrückt, auf deren Fläche weitere kleinteiligere Säle und Konferenzräume angeordnet sind. Das innenräumliche Konzept basiert auf der Interaktion zwischen eingestellten Volumen und äußerer Hüllfläche: Innerhalb eines durch die Gebäudefassade formulierten Raumes werden massive Bauteile und Kuben frei angeordnet, und teilweise vertikal gestapelt. Die verbleibenden Raumfolgen zwischen Fassade und den eingestellten Körpern dienen der Erschliessung und Kommunikation.
Bauherr
Stadt Uhingen
Planungs- und Bauzeit
2001 - 2004
BGF
5.351 m²
BRI
19.230 m³
Baukosten
8.000.000 €
Fachplaner
Tragwerksplanung Rohbau: Böck - Haßmann - Schmid, Schorndorf
Tragwerksplanung Fassade: Ludwig & Weiler, Augsburg
Tragwerksplanung Stahltreppe Foyer: RFR, Stuttgart
Haustechnik: Planungsgruppe U. Schmid, Göppingen
Elektroplanung: Elektroplan GmbH, Göppingen
Außenanlagen: Büro Dupper, Bad Friedrichshall
Bauphysik: Dr. Schäcke & Bayer, Waiblingen
Geologe: Wehrstein Geotechnik, Kernen
Fotografie
David Franck
www.uditorium.de
- Architetti
- SFA Simon Freie Architekten BDA
- Stato del progetto
- Progetto
















